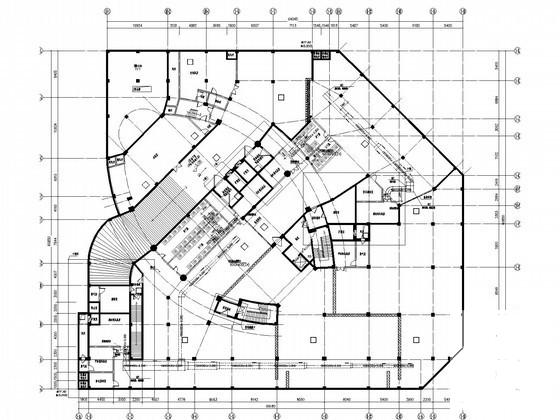
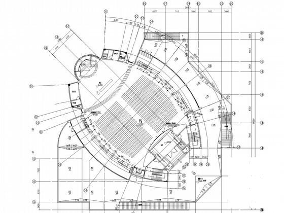
宗教教堂空调通风排烟系统设计施工大样图
- 发布时间:2021-11-25
- 评论次数:0
- 浏览次数:0
- 文件大小:1.45 MB
- 收藏次数:0
-
文件名称:
附件-995858587877785588557.rar
空调通风系统图下载
- 基督教堂通风空调CAD施工图纸
- 大型人防工程空调通风及防排烟系统设计施工大样图
- 单层车间空调通风及防排烟系统改造设计施工大样图
- 医技楼空调通风及防排烟系统设计施工大样图
- 地下商场通风空调及防排烟系统设计施工大样图
- 多层教育建筑空调通风及防排烟系统设计施工大样图
- 高层宾馆空调通风及防排烟系统设计CAD施工大样图
- 娱乐建筑空调通风及防排烟系统设计CAD施工大样图
- 文娱建筑空调通风及防排烟系统设计CAD施工大样图
- 健身中心空调通风及防排烟系统设计CAD施工大样图(采暖设计)
- 多层体育场空调通风及防排烟系统设计CAD施工大样图(采暖设计)
- 多层商务酒店空调通风排烟系统设计CAD施工大样图(防火采暖设计)
- 高层综合体空调通风防排烟系统设计CAD施工大样图(人防设计)
- 多层疗养医院空调通风及防排烟系统设计施工CAD大样图(机房设计)
- 高层商贸中心空调通风及防排烟系统设计CAD施工大样图(大院设计)
- 高层防疫大楼空调通风及防排烟系统设计CAD施工大样图(节能设计)
- 多层娱乐餐饮建筑空调通风及防排烟系统设计施工CAD大样图(洁净设计)
- 宗教佛教建筑课件(PDF,47页)
- 高层医疗住院楼空调通风防排烟系统
- 14层宾馆空调通风图纸(机械排烟系统)
全部评论
评论网友评论仅友表达个人看法,并不表明本站同意其观点,不得发布违反法律法规的内容!
