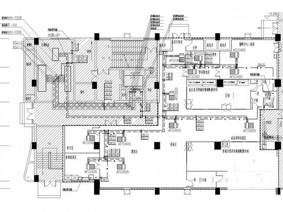
医技楼空调通风及防排烟系统设计施工大样图
- 发布时间:2021-11-25
- 评论次数:0
- 浏览次数:0
- 文件大小:4.65 MB
- 收藏次数:0
- 
								文件名称: 附件-995858575595658789860.rar 附件-995858575595658789860.rar
								空调通风系统图下载
							
						- 32762平米16层门诊医技病房楼空调通风及防排烟系统设计施工图纸
- 5层医院门诊医技大楼空调通风及防排烟系统设计CAD施工图纸
- 大型人防工程空调通风及防排烟系统设计施工大样图
- 单层车间空调通风及防排烟系统改造设计施工大样图
- 地下商场通风空调及防排烟系统设计施工大样图
- 多层教育建筑空调通风及防排烟系统设计施工大样图
- 高层宾馆空调通风及防排烟系统设计CAD施工大样图
- 娱乐建筑空调通风及防排烟系统设计CAD施工大样图
- 文娱建筑空调通风及防排烟系统设计CAD施工大样图
- 多层行政办公楼空调通风及防排烟系统设计施工图纸
- 3层行政楼空调通风及防排烟系统设计施工图纸
- 高层办公楼通风空调及防排烟系统设计施工图纸
- 高层办公楼空调通风及防排烟系统设计施工图纸
- 多层实验办公楼空调通风及防排烟系统设计施工图纸
- 高层商业办公楼空调通风及防排烟系统设计施工图纸
- 多层商务楼空调通风及防排烟系统设计施工图纸
- 高层商业写字楼空调通风及防排烟系统设计施工图纸
- 5层办公楼空调通风及防排烟系统设计施工图纸
- 商业办公楼空调通风及防排烟系统设计CAD施工图纸
- 高层商业楼空调通风及防排烟系统设计CAD施工图纸
全部评论
						
							评论网友评论仅友表达个人看法,并不表明本站同意其观点,不得发布违反法律法规的内容!
						
						
 
	              	 
	              	 
	              	 
	              	 
	              	