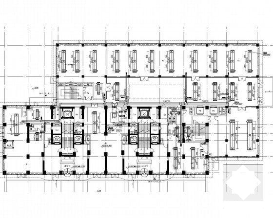
超高层公寓住宅楼暖通空调采暖通风防排烟系统CAD施工图纸(混凝土基础)
- 发布时间:2023-01-03
- 评论次数:0
- 浏览次数:0
- 文件大小:6.12 MB
- 收藏次数:0
- 
								文件名称: 附件-995858877069709570700.rar 附件-995858877069709570700.rar
								相关下载
							
						- 超高层公寓住宅楼空调采暖通风及防排烟系统CAD施工图纸(大院作品FCU加新风系统)(混凝土基础)
- 超高层公寓住宅楼暖通空调采暖通风防排烟系统施工大样图
- 超高层公寓住宅楼空调采暖通风及防排烟系统施工CAD大样图(大院作品FCU加新风系统)
- 超高层住宅楼采暖通风及防排烟系统设计CAD施工图纸
- 超高层商业建筑空调通风及防排烟系统设计施工图纸
- 40层超高层住宅楼采暖通风设计CAD施工图纸(防排烟系统图)
- 高层住宅项目采暖通风及防排烟系统设计施工图纸
- 高层住宅采暖通风及防排烟系统设计CAD施工图纸
- 超高层写字楼暖通空调通风排烟系统设计施工图纸
- 高层住宅楼项目采暖通风及防排烟系统设计CAD施工图纸
- 高层住宅楼小区采暖通风及防排烟系统设计CAD施工图纸
- 多层住宅楼小区采暖通风及防排烟系统设计CAD施工图纸
- 高层住宅楼采暖通风及防排烟系统设计CAD施工图纸
- 高层住宅楼采暖通风及防排烟系统设计CAD施工图纸
- 58191平米超高层综合建筑空调通风防排烟系统
- 国内公寓采暖通风设计CAD施工图纸
- 多层公寓采暖通风系统设计施工CAD图纸
- 医院综合楼空调采暖通风及排烟系统设计施工图纸
- 2层大型药店采暖通风空调及防排烟CAD施工图纸
- 18层住宅楼通风及防排烟系统暖通施工图纸
全部评论
						
							评论网友评论仅友表达个人看法,并不表明本站同意其观点,不得发布违反法律法规的内容!
						
						
 
	              	 
	              	 
	              	 
	              	 
	              	