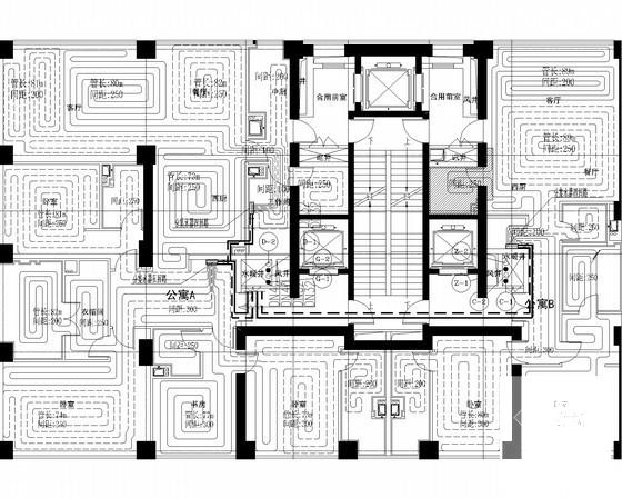
超高层公寓住宅楼空调采暖通风及防排烟系统CAD施工图纸(大院作品FCU加新风系统)(混凝土基础)
- 发布时间:2023-01-04
- 评论次数:0
- 浏览次数:0
- 文件大小:3.86 MB
- 收藏次数:0
- 
								文件名称: 附件-995857997688967757056.rar 附件-995857997688967757056.rar
								相关下载
							
						- 超高层公寓住宅楼空调采暖通风及防排烟系统施工CAD大样图(大院作品FCU加新风系统)
- 6层娱乐综合建筑采暖空调通风及防排烟系统(大院人防)
- 4层文化建筑空调通风及防排烟系统设计CAD施工图纸(大院作品)
- 超高层公寓住宅楼暖通空调采暖通风防排烟系统CAD施工图纸(混凝土基础)
- 26层层酒店采暖及防排烟系统设计CAD施工图纸(大院作品)
- 高层酒店采暖及防排烟系统设计CAD施工大样图(大院作品)
- 多层物流厂房空调通风及防排烟系统设计施工CAD图纸(大院出品)
- 超高层商业建筑空调通风及防排烟系统设计施工图纸
- 高层办公建筑空调通风及防排烟系统(大院设计)
- 超高层住宅楼采暖通风及防排烟系统设计CAD施工图纸
- 11层党校教育教学楼空调通风及防排烟系统设计CAD施工图纸(大院作品地源热泵系统)
- 超高层公寓住宅楼暖通空调采暖通风防排烟系统施工大样图
- 多层娱乐综合建筑采暖空调通风及防排烟系统
- 5层教育科技中心空调通风及防排烟系统设计CAD施工图纸(大院出品)
- 现代4层商业街空调通风及防排烟系统设计CAD施工图纸(大院设计)
- 4层商业建筑空调通风及防排烟系统设计CAD施工图纸(大院出品)
- 3层大型体育中心空调通风及防排烟系统设计CAD施工图纸(大院设计)
- 大型高层商务酒店空调通风及防排烟系统设计施工CAD图纸(大院设计)
- 3层大型体育中心空调通风及防排烟系统设计CAD施工图纸(大院设计)
- 现代大型交通建筑空调通风及防排烟系统设计施工CAD图纸(大院设计)
全部评论
						
							评论网友评论仅友表达个人看法,并不表明本站同意其观点,不得发布违反法律法规的内容!
						
						
 
	              	 
	              	 
	              	