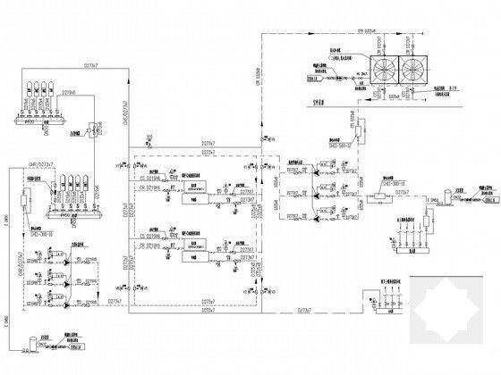
5层建筑办公楼空调通风及防排烟系统设计CAD施工图纸(地源热泵系统)
- 发布时间:2022-12-30
- 评论次数:0
- 浏览次数:0
- 文件大小:5.65 MB
- 收藏次数:0
- 
								文件名称: 附件-995858579556090978666.rar 附件-995858579556090978666.rar
								相关下载
							
						- 5层办公楼空调通风防排烟系统设计CAD施工图纸(地源热泵系统)
- 多层办公楼空调通风防排烟系统设计CAD施工图纸(地源热泵系统)
- 科技办公楼空调通风及防排烟系统设计CAD施工图纸(空气源热泵系统)
- 多层办公楼建筑空调通风系统设计CAD施工图纸(地源热泵)
- 3层知名大学体育馆空调通风及防排烟系统设计CAD施工图纸(地源热泵系统)
- 11层党校教育教学楼空调通风及防排烟系统设计CAD施工图纸(大院作品地源热泵系统)
- 5层商业广场及活动中心空调通风防排烟系统设计CAD施工图纸(地源热泵系统)
- 5层知名大学体育馆空调通风及防排烟系统设计CAD施工图纸(地源热泵系统)
- 5层商业广场及活动中心空调通风防排烟系统设计CAD施工大样图(地源热泵系统)
- 多层行政办公楼空调通风及防排烟系统设计施工图纸
- 高层办公楼通风空调及防排烟系统设计施工图纸
- 高层办公楼空调通风及防排烟系统设计施工图纸
- 多层实验办公楼空调通风及防排烟系统设计施工图纸
- 高层商业办公楼空调通风及防排烟系统设计施工图纸
- 5层办公楼空调通风及防排烟系统设计施工图纸
- 商业办公楼空调通风及防排烟系统设计CAD施工图纸
- 4层综合工业广场空调通风及防排烟系统设计CAD施工图纸(地源热泵设计)
- 多层厂房改造空调通风及防排烟系统设计CAD施工图纸(大院设计地源热泵)
- 4层综合工业广场空调通风及防排烟系统设计CAD施工图纸(地源热泵设计)
- 多层办公楼多联机空调通风防排烟系统设计CAD施工图纸(空气源热泵)
全部评论
						
							评论网友评论仅友表达个人看法,并不表明本站同意其观点,不得发布违反法律法规的内容!
						
						
 
	              	 
	              	 
	              	 
	              	 
	              	