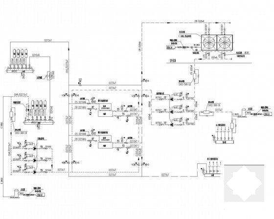
多层办公楼建筑空调通风系统设计CAD施工图纸(地源热泵)
- 发布时间:2023-01-06
- 评论次数:0
- 浏览次数:0
- 文件大小:4.2 MB
- 收藏次数:0
-
文件名称:
附件-995858870087688900858.rar
相关下载
- 多层办公楼空调通风防排烟系统设计CAD施工图纸(地源热泵系统)
- 高层公共建筑空调通风设计CAD施工图纸(地源热泵系统)
- 5层办公楼空调通风防排烟系统设计CAD施工图纸(地源热泵系统)
- 多层别墅地源热泵空调系统设计CAD施工图纸(冷暖联供空调系统)
- 办公楼地源热泵系统设计CAD图纸
- 上11层公共建筑空调通风设计CAD施工图纸(地源热泵系统)
- 审判综合办公楼地源热泵空调系统设计CAD图纸
- 5层建筑办公楼空调通风及防排烟系统设计CAD施工图纸(地源热泵系统)
- 多层办公楼多联机空调通风防排烟系统设计CAD施工图纸(空气源热泵)
- 多层办公楼空调及通风排烟设计CAD施工大样图(空气源热泵VRF系统)
- 多层办公楼空调及通风系统设计2019
- 多层商场建筑空调通风系统设计施工图纸
- 多层商业建筑空调通风系统设计施工图纸
- 工业工厂及配套设施空调系统设计CAD施工图纸(地源热泵系统)
- 工业工厂及配套设施空调系统设计CAD施工图纸(地源热泵系统)
- 多层厂房改造空调通风及防排烟系统设计CAD施工图纸(大院设计地源热泵)
- 多层办公楼建筑空调通风系统设计施工图纸
- 地源热泵冰蓄冷系统吸附式空调系统设计CAD图纸
- 地源热泵系统原理CAD图纸
- 3层办公楼风机盘管新风空调系统设计CAD施工图纸(地源热泵机组)
全部评论
评论网友评论仅友表达个人看法,并不表明本站同意其观点,不得发布违反法律法规的内容!
