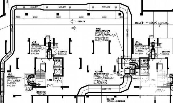
25层住宅楼通风及防排烟设计施工图纸
- 发布时间:2021-11-25
- 评论次数:0
- 浏览次数:0
- 文件大小:6.34 MB
- 收藏次数:0
- 
								文件名称: 附件-995858755799577597700.rar 附件-995858755799577597700.rar
								住宅楼通风排烟下载
							
						- 多层住宅楼小区通风及防排烟系统设计施工图纸
- 小高层住宅楼通风及防排烟系统设计施工图纸
- 高层住宅楼通风及防排烟系统设计施工图纸
- 高层住宅楼通风及防排烟设计施工图纸
- 住宅楼地下室通风及防排烟系统设计施工图纸
- 多层中学教学楼通风及防排烟设计
- 多层商业建筑通风及防排烟施工图纸
- 24层住宅楼小区通风及防排烟设计
- 18层住宅楼通风及防排烟系统暖通施工图纸
- 住宅楼通风及防排烟系统暖通CAD施工图纸
- 12层住宅楼暖通CAD施工图纸(通风及防排烟系统)
- 住宅楼及地下室通风防排烟CAD施工图纸
- 商场空调通风防排烟设计
- 住宅楼地下室通风及防排烟系统设计CAD施工图纸(节能环保设计)
- 11层酒店通风及防排烟系统设计CAD施工图纸(节能设计)
- 3层宾馆通风及防排烟系统设计CAD施工图纸(人防设计)
- 多层宾馆通风及防排烟系统设计CAD施工图纸(人防设计)
- 高层酒店空调通风及防排烟系统设计CAD施工图纸(机房设计)
- 科研楼通风空调及防排烟设计CAD施工图纸(人防设计)
- 高层宾馆空调通风及防排烟系统设计CAD施工图纸(节能设计)
全部评论
						
							评论网友评论仅友表达个人看法,并不表明本站同意其观点,不得发布违反法律法规的内容!
						
						
 
	              	 
	              	 
	              	