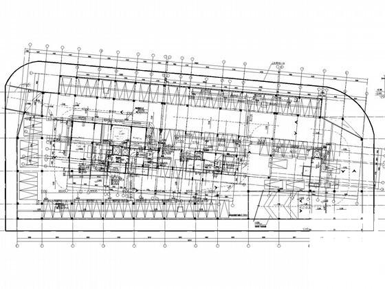
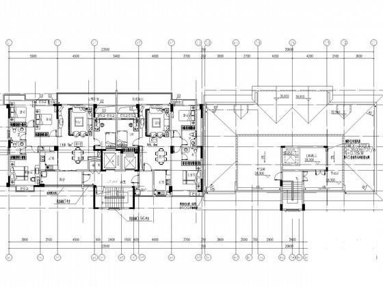
13579平米17层住宅楼通风及防排烟系统设计施工图纸
- 发布时间:2021-11-25
- 评论次数:0
- 浏览次数:0
- 文件大小:1.03 MB
- 收藏次数:0
-
文件名称:
附件-995858557859557678597.rar
住宅楼通风排烟下载
- 多层住宅楼小区通风及防排烟系统设计施工图纸
- 小高层住宅楼通风及防排烟系统设计施工图纸
- 高层住宅楼通风及防排烟系统设计施工图纸
- 住宅楼地下室通风及防排烟系统设计施工图纸
- 18层住宅楼通风及防排烟系统暖通施工图纸
- 住宅楼通风及防排烟系统暖通CAD施工图纸
- 12层住宅楼暖通CAD施工图纸(通风及防排烟系统)
- 住宅楼地下室通风及防排烟系统设计CAD施工图纸(节能环保设计)
- 11层酒店通风及防排烟系统设计CAD施工图纸(节能设计)
- 3层宾馆通风及防排烟系统设计CAD施工图纸(人防设计)
- 多层宾馆通风及防排烟系统设计CAD施工图纸(人防设计)
- 高层酒店空调通风及防排烟系统设计CAD施工图纸(机房设计)
- 高层宾馆空调通风及防排烟系统设计CAD施工图纸(节能设计)
- 多层科研中心空调通风及防排烟系统设计施工CAD图纸(节能设计)
- 多层餐厅空调通风及防排烟系统设计CAD施工图纸(人防设计)
- 13494平米16层住宅楼通风及防排烟系统设计施工图纸
- 140000平米高层住宅楼小区空调通风及防排烟系统设计施工图纸
- 多户型高层住宅楼通风及防排烟系统设计施工图纸
- 高层住宅楼建筑群通风及防排烟系统设计施工图纸
- 34层住宅楼小区建筑通风及防排烟系统设计施工图纸
全部评论
评论网友评论仅友表达个人看法,并不表明本站同意其观点,不得发布违反法律法规的内容!
