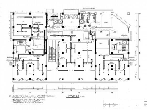
25层商务大厦空调通风及防排烟系统毕业设计方案
- 发布时间:2021-12-10
- 评论次数:0
- 浏览次数:0
- 文件大小:0.91 MB
- 收藏次数:0
- 
								文件名称: 附件-995857958880708658975.rar 附件-995857958880708658975.rar
								通风及防排烟方案下载
							
						- 25层商务大厦空调通风及防排烟系统毕业设计方案平面图
- 商务大厦通风空调毕业设计方案
- 市商务大厦空调通风毕业设计方案(正压送风系统)
- 商务大厦空调工程毕业设计方案
- 酒店空调工程毕业设计方案(防排烟系统图)
- 现代多层厂房建筑空调通风及防排烟系统(净化空调)
- 高层医疗住院楼空调通风防排烟系统
- 多层行政办公楼空调通风及防排烟系统设计施工图纸
- 19层医疗建筑空调通风及防排烟系统设计施工图纸
- 大型人防工程空调通风及防排烟系统设计施工大样图
- 多层医药车间空调通风及防排烟系统设计施工图纸
- 30810平米大型展馆空调通风及防排烟系统设计施工图纸
- 5层大型仓库空调通风及防排烟系统设计施工图纸
- 23层实验中心大厦空调通风及防排烟系统设计施工图纸
- 46959平米高层五星酒楼空调通风及防排烟系统
- 4层动物疾控中心空调通风及防排烟系统设计施工图纸
- 单层车间空调通风及防排烟系统改造设计施工大样图
- 3层医药车间空调通风及防排烟系统设计施工图纸
- 医技楼空调通风及防排烟系统设计施工大样图
- 地下商场通风空调及防排烟系统设计施工大样图
全部评论
						
							评论网友评论仅友表达个人看法,并不表明本站同意其观点,不得发布违反法律法规的内容!
						
						
 
	              	 
	              	 
	              	