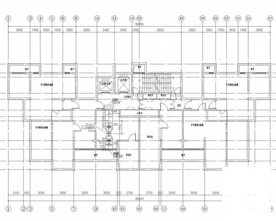
11480平米住宅建筑群采暖及通风防排烟系统设计施工大样图
- 发布时间:2021-11-25
- 评论次数:0
- 浏览次数:0
- 文件大小:5.84 MB
- 收藏次数:0
- 
								文件名称: 附件-995858859085598687878.rar 附件-995858859085598687878.rar
								建筑防排烟系统设计下载
							
						- 酒店防排烟系统设计格式图纸
- 19层医疗建筑空调通风及防排烟系统设计施工图纸
- 学校园区建筑空调通风防排烟系统设计施工图纸
- 多层民用建筑通风防排烟系统设计施工图纸
- 民用建筑通风及防排烟系统设计施工图平面图
- 高层商住建筑空调通风防排烟系统设计施工图纸
- 高层住宅建筑通风防排烟系统设计施工大样图
- 33层住宅建筑通风与防排烟系统设计施工图纸
- 体育场馆建筑通风及防排烟系统设计施工图纸
- 办公建筑空调通风及防排烟系统设计施工图纸
- 多层教育建筑空调通风及防排烟系统设计施工大样图
- 高层办公建筑空调通风及防排烟系统设计施工图纸
- 多层公共建筑通风及防排烟系统设计施工图纸
- 高层教育建筑空调通风及防排烟系统设计施工图纸
- 多层商业街建筑空调通风防排烟系统设计施工图纸
- 多层公共建筑空调通风及防排烟系统设计施工图纸
- 多层商业建筑通风及防排烟系统设计施工图纸
- 高层办公建筑空调通风及防排烟系统(大院设计)
- 多层餐饮建筑空调通风及防排烟系统设计施工图纸
- 33层民用建筑通风及防排烟系统设计施工图纸
全部评论
						
							评论网友评论仅友表达个人看法,并不表明本站同意其观点,不得发布违反法律法规的内容!
						
						
 
	              	 
	              	 
	              	 
	              	