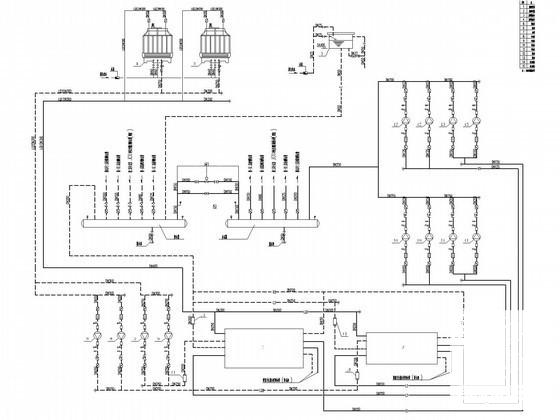
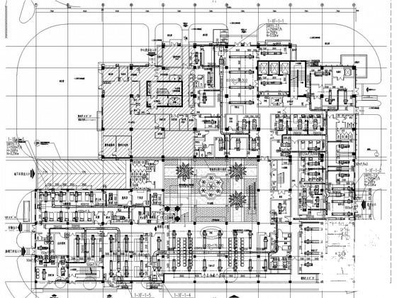
41709平米13层医院急诊楼和康复后勤中心空调通风及防排烟系统设计施工图纸
- 发布时间:2021-11-23
- 评论次数:0
- 浏览次数:0
- 文件大小:5.53 MB
- 收藏次数:0
- 
								文件名称: 附件-995858567759608755577.rar 附件-995858567759608755577.rar
								后勤楼空调下载
							
						- 13层医院急诊楼和康复后勤中心空调通风及防排烟系统设计施工CAD图纸(节能设计)
- 高层康复医院迁建工程空调通风防排烟系统施工大样图.dwg
- 11层医院急诊及住院楼通风空调系统设计CAD施工图纸
- 医院中心血站实验室空调通风及防排烟系统设计施工图纸
- 多层科研中心空调通风及防排烟系统设计施工CAD图纸(节能设计)
- 23层实验中心大厦空调通风及防排烟系统设计施工图纸
- 4层动物疾控中心空调通风及防排烟系统设计施工图纸
- 健身中心场馆空调通风及防排烟系统设计施工图纸
- 5层教育中心空调通风及防排烟系统设计施工图纸
- 多层商业购物中心空调通风及防排烟系统设计施工图纸
- 多层游泳训练中心空调通风及防排烟系统设计施工图纸
- 高层实验中心大厦空调通风及防排烟系统设计施工图纸
- 4层会展中心空调通风及防排烟系统设计施工图纸
- 高层科技办公中心空调通风及防排烟系统设计施工图纸.dwg
- 4层医院影像楼空调通风防排烟系统设计施工图纸
- 高层医院工程病房楼空调通风防排烟系统设计施工图纸
- 医院影像楼空调通风防排烟系统设计CAD施工图纸
- 行政后勤办公楼空调及通风排烟系统设计CAD施工图纸(空调机房)
- 医院5512.60平米多层综合病房楼空调通风及防排烟系统设计施工图纸
- 6层医院综合楼空调通风及防排烟系统设计施工图纸
全部评论
						
							评论网友评论仅友表达个人看法,并不表明本站同意其观点,不得发布违反法律法规的内容!
						
						
 
	              	 
	              	 
	              	 
	              	