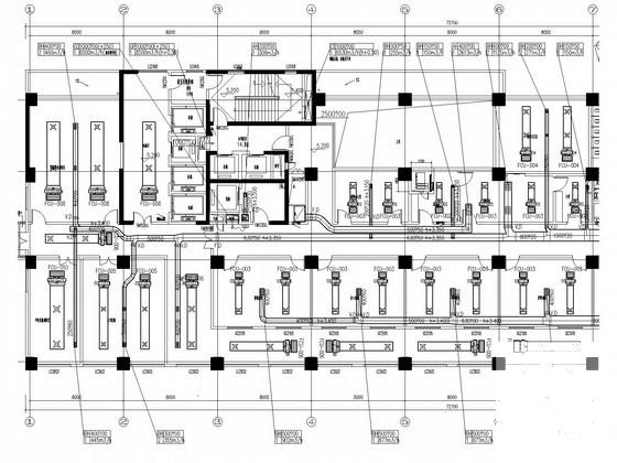
高层医院工程病房楼空调通风防排烟系统设计施工图纸
- 发布时间:2021-12-10
- 评论次数:0
- 浏览次数:0
- 文件大小:13.79 MB
- 收藏次数:0
-
文件名称:
附件-996098059777575809.rar
医院空调设计图纸下载
- 医院5512.60平米多层综合病房楼空调通风及防排烟系统设计施工图纸
- 医院多层综合病房楼空调通风及防排烟系统设计CAD施工图纸
- 高层医疗病房楼空调通风及防排烟系统设计施工CAD图纸(洁净设计)
- 高层医疗住院楼空调通风防排烟系统
- 医院综合病房楼通风防排烟施工方案
- 4层医院影像楼空调通风防排烟系统设计施工图纸
- 医院影像楼空调通风防排烟系统设计CAD施工图纸
- 高层康复医院迁建工程空调通风防排烟系统施工大样图.dwg
- 高层办公楼通风空调及防排烟系统设计施工图纸
- 小高层办公楼空调通风防排烟系统设计施工图纸
- 高层办公楼空调通风及防排烟系统设计施工图纸
- 高层商业办公楼空调通风及防排烟系统设计施工图纸
- 高层商业写字楼空调通风及防排烟系统设计施工图纸
- 高层商业楼空调通风及防排烟系统设计CAD施工图纸
- 32762平米16层门诊医技病房楼空调通风及防排烟系统设计施工图纸
- 35500平米19层医疗病房楼空调通风及防排烟系统设计施工图纸
- 高层医院空调通风及防排烟系统设计CAD施工图纸(人防设计).dwg
- 44207平米19层医院病房综合楼空调通风排烟系统设计施工图纸
- 高层酒店空调通风及防排烟系统设计CAD施工图纸(机房设计)
- 高层宾馆空调通风及防排烟系统设计CAD施工图纸(节能设计)
全部评论
评论网友评论仅友表达个人看法,并不表明本站同意其观点,不得发布违反法律法规的内容!
