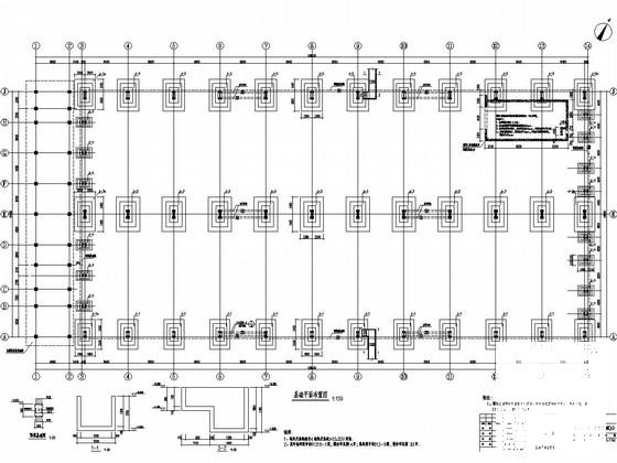
地上单层独立基础钢结构置景棚结构CAD施工图纸(8度抗震)
- 发布时间:2023-01-17
- 评论次数:0
- 浏览次数:0
- 文件大小:1.18 MB
- 收藏次数:0
-
文件名称:
附件-995877788809670858680.zip
相关下载
- 8度抗震单层钢结构置景棚结构CAD施工图纸(独立基础)
- 单层钢结构置景棚结构CAD施工图纸(8度抗震)
- 单层钢结构置景棚结构CAD施工方案图纸
- 地上单层砌体结构污水池结构CAD施工图纸(柱下独立基础)
- 单层门式刚架厂房结构CAD施工图纸(独立基础)(抗震设防类别)
- 单层独立基础框架配电室结构CAD施工图纸(7度抗震)
- 单层钢结构厂房结构CAD施工图纸(独立基础)(平面布置图)
- 单层钢结构厂房建筑结构CAD施工图纸(独立基础)
- 单层钢结构小型体育场结构CAD施工图纸(独立基础)
- 钢结构4S汽车店结构CAD施工图纸(单层独立基础)
- 单层桩基础钢结构厂房结构CAD施工图纸(7度抗震)
- 单层钢结构厂房设计施工图纸(独立基础,共12张)
- 跨度24m单层门式钢架钢结构CAD施工图纸(独立基础)
- 单层钢结构售楼处CAD施工图纸(独立基础)
- 跨度15米单层钢结构厂房结构设计图纸(独立基础)
- 跨度18.6m单层钢结构厂房结构设计CAD图纸(独立基础)
- 30米跨单层钢结构厂房结构设计图纸(独立基础)
- 20米跨单层钢结构厂房结构设计图纸(独立基础)
- 26.7m跨单层独立基础钢结构厂房结构设计CAD图纸
- 电厂干料棚结构设计施工图纸(独立基础,共18张)
全部评论
评论网友评论仅友表达个人看法,并不表明本站同意其观点,不得发布违反法律法规的内容!
