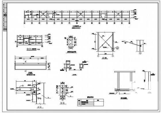
20米跨单层钢结构厂房结构设计图纸(独立基础)
- 发布时间:2023-01-08
- 评论次数:0
- 浏览次数:0
- 文件大小:0.28 MB
- 收藏次数:0
-
文件名称:
附件-995878879857870579005.rar
相关下载
- 30米跨单层钢结构厂房结构设计图纸(独立基础)
- 26.7m跨单层独立基础钢结构厂房结构设计CAD图纸
- 18米跨单层独立基础工业厂房设计CAD图纸(轻型钢结构)
- 24米跨单层厂房结构设计施工图纸(独立基础)
- 22米跨单层门式刚架厂房结构设计图纸(独立基础)
- 跨度15米单层钢结构厂房结构设计图纸(独立基础)
- 跨度18.6m单层钢结构厂房结构设计CAD图纸(独立基础)
- 双连跨24m单层钢结构厂房结构设计图纸(混凝土基础,独立基础)(平面布置图)
- 跨度20m单层钢结构厂房结构设计图纸(条形基础,独立基础)
- 四跨独立基础单层门式钢架结构厂房结构CAD施工图纸
- 高低跨单层门式刚架厂房结构CAD施工图纸(独立基础)
- 18m跨单层门式钢架厂房结构CAD施工图纸(独立基础)
- 12米跨单层门式刚架车间厂房结构设计图纸(独立基础)
- 厂房结构设计施工图纸(单层厂房,独立基础)
- 单层钢结构厂房设计施工图纸(独立基础,共12张)
- 单层钢结构厂房结构CAD施工图纸(独立基础)(平面布置图)
- 单层钢结构厂房建筑结构CAD施工图纸(独立基础)
- 2×33米跨单层钢结构厂房图纸(钢结构设计说明)
- 65米跨大型钢结构厂房CAD施工图纸(独立基础)
- 钢结构厂房建筑结构CAD施工图纸(20米跨独立基础)
全部评论
评论网友评论仅友表达个人看法,并不表明本站同意其观点,不得发布违反法律法规的内容!
