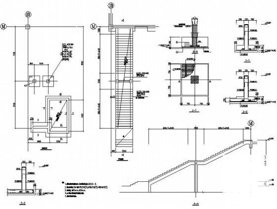
地上两层框架结构步行街结构CAD施工图纸(独立基础,6度抗震)
- 发布时间:2022-10-11
- 评论次数:0
- 浏览次数:0
- 文件大小:3.03 MB
- 收藏次数:0
-
文件名称:
附件-995876870668589609850.rar
相关下载
- 两层钢框架结构展厅结构CAD施工图纸(7度抗震)(柱下独立基础)
- 两层独立基础砌体结构别墅结构CAD施工图纸(8度抗震)
- 两层独立基础型钢混凝土食堂结构CAD施工图纸(8度抗震)
- 钢框架地上两层厂房结构设计施工图纸(独立基础)
- 两层框架结构别墅结构设计施工图纸(独立基础)
- 两层框架结构独立基础小型欧式别墅结构CAD施工图纸
- 两层框架结构别墅结构CAD施工图纸(独立基础2012年)
- 3层框架结构独立基础别墅结构CAD施工图纸(6度抗震)
- 3层独立基础框架结构宿舍结构CAD施工图纸(7度抗震)
- 地上2层钢框架结构车间厂房结构CAD施工图纸(独立基础)
- 两层框架结构中学食堂建筑施工CAD图纸(独立基础)
- 独立基础框架结构训练中心CAD施工图纸(7度抗震)
- 两层独立基础框剪结构商住楼结构CAD施工图纸(8度抗震)
- 地上单层独立基础钢结构置景棚结构CAD施工图纸(8度抗震)
- 地上3层砌体结构住宅楼结构CAD施工图纸(6度抗震)(柱下独立基础)
- 国内上两层框架别墅结构CAD施工图纸(独立基础,8度抗震)
- 两层独立基础钢框架售楼处结构CAD施工图纸(8度抗震)
- 两层独立基础钢框架临时建筑结构CAD施工图纸(7度抗震)
- 独立基础两层框架结构管理房结构设计CAD施工图纸(7度抗震)(办公楼给排水)
- 两层独立基础框架结构咖啡厅结构CAD施工图纸(7度抗震)(梁配筋图)
全部评论
评论网友评论仅友表达个人看法,并不表明本站同意其观点,不得发布违反法律法规的内容!
