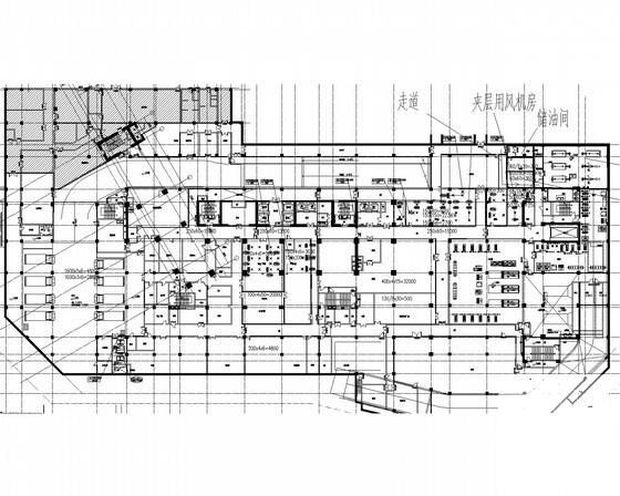
23层酒店项目通风空调及防排烟系统CAD施工图纸
- 发布时间:2023-01-04
- 评论次数:0
- 浏览次数:0
- 文件大小:8.25 MB
- 收藏次数:0
- 
								文件名称: 附件-995857975997799588085.rar 附件-995857975997799588085.rar
								相关下载
							
						- 高层酒店项目通风空调及防排烟系统CAD施工图纸
- 高层商业办公综合项目空调通风及防排烟系统设计施工图纸
- 多层商务酒店空调通风及防排烟系统设计施工图纸
- 22层商业酒店空调通风及防排烟系统设计CAD施工图纸
- 5层酒店空调通风及防排烟系统设计CAD施工图纸
- 高层酒店空调通风及防排烟系统设计CAD施工图纸
- 高层酒店建筑空调通风及防排烟系统设计CAD施工方案图纸
- 高层商业酒店空调通风及防排烟系统设计CAD施工图纸
- 高层酒店空调通风及防排烟系统设计CAD施工图纸(机房设计)
- 多层温泉酒店空调通风及防排烟系统设计施工CAD图纸(VRV系统)
- 多层酒店厨房空调通风及防排烟系统设计CAD施工图纸
- 多层酒店空调通风及防排烟系统设计施工图纸.
- 20层商业办公楼综合项目空调通风及防排烟系统设计施工图纸
- 高层住宅商业综合项目空调通风及防排烟系统设计施工图纸
- 6层栋工业厂房综合项目空调通风及防排烟系统设计CAD施工图纸
- 高层住宅项目采暖通风及防排烟系统设计施工图纸
- 18层大型酒店项目空调通风防排烟系统初步设计及二次深化CAD施工图纸(天燃气真空锅炉)
- 3层大型度假酒店空调通风及防排烟系统设计施工图纸
- 3层温泉酒店空调通风及防排烟系统设计CAD施工图纸(VRV系统)
- 12层酒店空调通风及防排烟系统设计CAD施工图纸(机房设计)
全部评论
						
							评论网友评论仅友表达个人看法,并不表明本站同意其观点,不得发布违反法律法规的内容!
						
						
 
	              	 
	              	 
	              	 
	              	