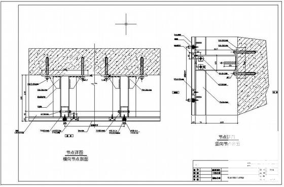
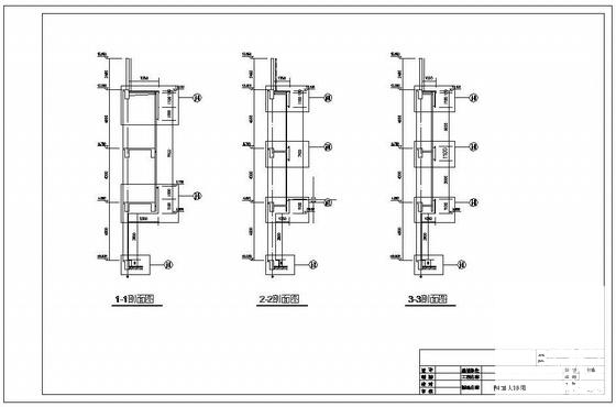
3层工程幕墙结构设计施工大样图,共40张施工大样图
- 发布时间:2021-11-29
- 评论次数:0
- 浏览次数:0
- 文件大小:3.53 MB
- 收藏次数:0
-
文件名称:
附件-995877679785575559858.rar
幕墙结构设计下载
- 3层网点幕墙装饰工程设计施工大样图,共52张
- 广场幕墙工程大样图.
- 体育学校幕墙工程CAD施工大样图
- 18层审计厅幕墙工程设计施工大样图,共83张施工大样图
- 3层住宅裙楼石材幕墙工程设计施工大样图,共24张
- 15层大厦幕墙工程结构设计施工大样图(计算书)
- 15层大厦幕墙工程结构设计CAD施工大样图
- 3层工程幕墙结构设计CAD施工大样图
- 办公楼玻璃幕墙结构设计施工大样图,共23张施工大样图
- 地上7层实验楼玻璃幕墙工程施工大样图,共9张大样图
- 钢筋混凝土结构公司扩建工程幕墙钢构结构设计施工大样图,共15张
- 幕墙工程大样图(20张图)
- 干挂石材幕墙工程CAD大样图
- 大厦幕墙工程设计CAD大样图
- 电梯钢结构设计施工大样图,共6张施工大样图
- 超市全玻璃幕墙工程结构设计大样图
- 大厦幕墙工程设计大样图(立面大样图)
- 学校风雨操场加固工程结构设计施工大样图,共3张
- 厂房幕墙结构设计CAD大样图
- 教学楼玻璃幕墙工程施工大样图(17张大样图)
全部评论
评论网友评论仅友表达个人看法,并不表明本站同意其观点,不得发布违反法律法规的内容!
