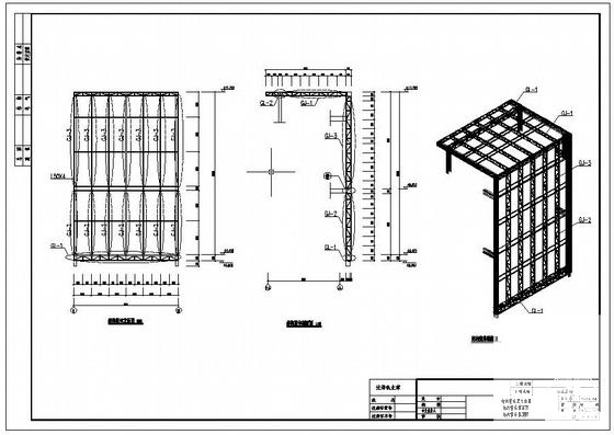
钢筋混凝土结构公司扩建工程幕墙钢构结构设计施工大样图,共15张
- 发布时间:2021-11-29
- 评论次数:0
- 浏览次数:0
- 文件大小:1.83 MB
- 收藏次数:0
-
文件名称:
附件-995877677098678687677.rar
钢筋混凝土结构工程下载
- 钢筋混凝土地下结构工程说明
- 金矿采选工程矿井建设图纸(钢筋混凝土结构,钢结构).dwg
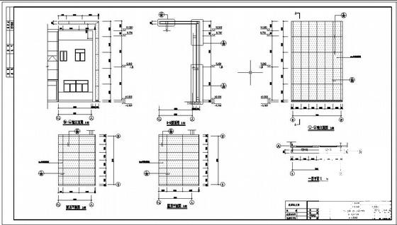
- 分行办公楼工程幕墙钢筋混凝土结构建筑施工CAD图纸
- 新光快速路工程大桥CAD施工方案图纸设计(钢筋混凝土结构)
- 烟囱改造工程施工方案(钢筋混凝土结构)
- 电厂厂房改造工程施工组织设计(钢筋混凝土结构)
- 厂房工程水处理旋流井施工方案(钢筋混凝土结构)
- 电厂输煤通廊工程施工方案(钢筋混凝土结构)
- 工程结构改造加固施工方案(钢筋混凝土楼梯)
- 工程主厂房BCD列框架施工方案(钢筋混凝土结构)
- 建筑工程单元式幕墙施工工艺(钢筋混凝土结构)
- 钢筋混凝土框架结构改扩建工程加固设计说明
- 建筑工程钢筋混凝土框架结构设计.pdf
- 钢筋混凝土结构施工阶段工程质量问题的预防.pdf
- 约旦工程钢筋混凝土筒仓结构施工工艺(滑模施工).doc
- 市钢筋混凝土高层建筑工程结构抗震超限情况判定表
- 钢结构工程钢筋混凝土柱安装示意图纸cad节点详图
- 7层小区拆迁安置房工程建筑结构CAD图纸(砌体结构,钢筋混凝土结构)
- 超高层钢梁砼核心筒结构工程钢结构节点施工(现浇钢筋混凝土)
- 钢筋混凝土结构公寓装修及安装工程预算书2018最新(附CAD图纸)
全部评论
评论网友评论仅友表达个人看法,并不表明本站同意其观点,不得发布违反法律法规的内容!
