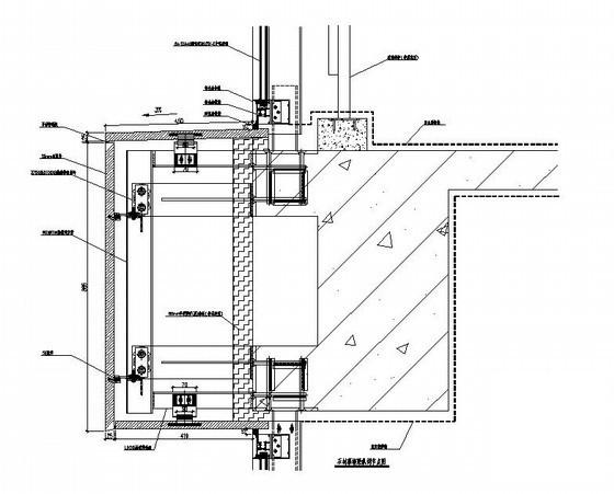
大厦幕墙工程设计大样图(立面大样图)
- 发布时间:2021-11-29
- 评论次数:0
- 浏览次数:0
- 文件大小:1.59 MB
- 收藏次数:0
- 
								文件名称: 附件-995877668898855875778.rar 附件-995877668898855875778.rar
								幕墙工程设计下载
							
						- 大厦幕墙工程设计CAD大样图
- 山庄钢结构及玻璃幕墙工程设计施工大样图
- 研发基地幕墙、雨篷、门窗工程设计大样图
- 9层办公楼幕墙工程设计施工大样图(计算书)
- 3层网点幕墙装饰工程设计施工大样图,共52张
- 公寓楼幕墙工程设计大样图(计算书)
- 店改造8层幕墙工程设计施工大样图
- 酒店幕墙工程设计施工大样图(地上4层,地下1层)
- 住宅地下部分石材幕墙工程设计施工大样图
- 12层公安局幕墙工程设计CAD施工大样图
- 11层法院幕墙工程设计CAD施工大样图
- 18层审计厅幕墙工程设计CAD施工大样图
- 5层高校新区幕墙工程设计CAD施工大样图
- 9层办公楼幕墙工程设计CAD施工大样图
- 3层网点幕墙装饰工程设计CAD施工大样图
- 住宅地下部分石材幕墙工程设计CAD施工大样图
- 8层店改造幕墙工程设计CAD施工大样图
- 3层住宅裙楼石材幕墙工程设计CAD施工大样图
- 4层酒店幕墙工程设计CAD施工大样图
- 4层办公楼幕墙工程设计施工大样图.dwg
全部评论
						
							评论网友评论仅友表达个人看法,并不表明本站同意其观点,不得发布违反法律法规的内容!
						
						
 
	              	 
	              	 
	              	