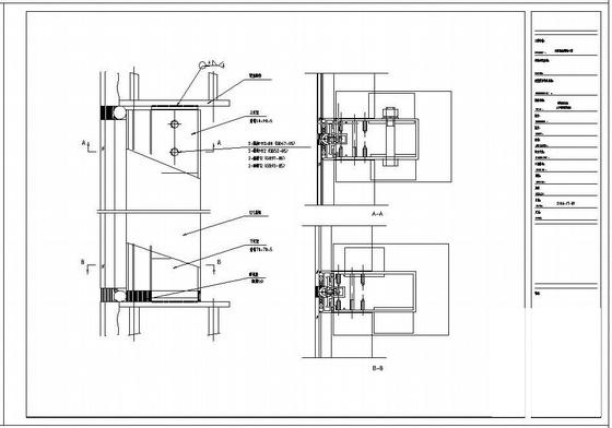
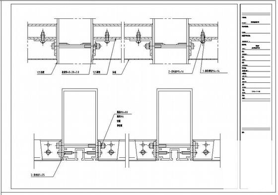
地上7层实验楼玻璃幕墙工程施工大样图,共9张大样图
- 发布时间:2021-11-30
- 评论次数:0
- 浏览次数:0
- 文件大小:1.87 MB
- 收藏次数:0
- 
								文件名称: 附件-995877758560799096766.rar 附件-995877758560799096766.rar
								玻璃幕墙大样图下载
							
						- 教学楼玻璃幕墙工程施工大样图(17张大样图)
- 地上3层框架别墅结构施工大样图,共19张
- 地上8层文化广场外立面穿孔铝板及观光电梯玻璃幕墙装饰工程施工大样图
- 7层实验楼玻璃幕墙工程
- 办公楼玻璃幕墙结构设计施工大样图,共23张施工大样图
- 玻璃幕墙施工大样图(11页施工大样图)
- 120系列玻璃幕墙大样图纸及天窗大样图纸
- 120系列玻璃幕墙大样图纸及天窗大样图纸
- 地上1层框架结构铝单板幕墙雨篷节点施工大样图,共8张施工大样图
- 玻璃幕墙施工大样图
- 观光电梯玻璃幕墙设计大样图
- 吊挂式玻璃幕墙节点大样图纸
- 点支式玻璃幕墙节点大样图纸
- 多种吊挂式玻璃幕墙节点大样图纸
- 多种明框玻璃幕墙节点大样图纸
- 公司全玻璃幕墙标准节点大样图纸
- 玻璃幕墙阳台详细节点大样图纸
- 明框玻璃幕墙CAD大样图
- 玻璃幕墙CAD施工大样图
- 玻璃幕墙构造CAD详大样图
全部评论
						
							评论网友评论仅友表达个人看法,并不表明本站同意其观点,不得发布违反法律法规的内容!
						
						
 
	              	 
	              	 
	              	