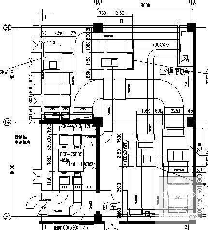
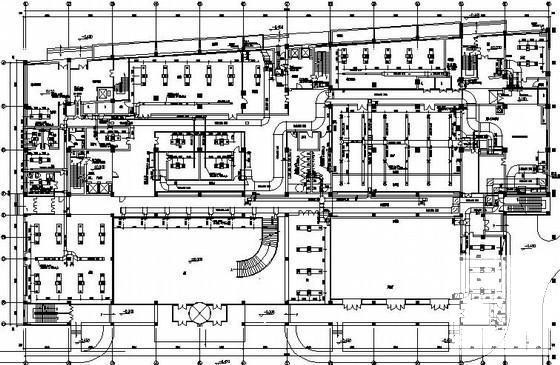
11层高级会议中心暖通设计CAD施工图纸(知名设计院)(防排烟系统图)
- 发布时间:2022-10-09
- 评论次数:0
- 浏览次数:0
- 文件大小:3.91 MB
- 收藏次数:0
-
文件名称:
附件-995858767777887086886.rar
相关下载
- 11层高级会议中心暖通设计施工大样图(知名设计院)
- 3层大学体育中心-行政教学楼(知名设计院)(通风防排烟系统)
- 14层20万平知名集团数据中心强电施工CAD大样图(知名设计院)
- 2层知名院校培训中心采暖空调通风防排烟系统设计施工图纸
- 2层知名院校培训中心采暖空调通风防排烟系统设计CAD施工图纸
- 超高层住宅暖通设计CAD施工方案图纸(防排烟系统图)
- 15层大饭店及休闲广场暖通设计CAD图纸(防排烟系统)
- 5层社会福利中心建筑施工CAD大样图(效果大样图知名设计院)
- 20万平14层知名集团数据中心强电CAD施工图纸(知名设计院)
- 4层知名商业建筑空调通风及防排烟系统设计CAD施工大样图.dwg
- 会展中心空调通风及防排烟系统设计施工图平面图
- 42层商务中心综合楼暖通空调设计CAD施工图纸(防排烟系统图)
- 23层实验中心大厦空调通风及防排烟系统设计施工图纸
- 4层动物疾控中心空调通风及防排烟系统设计施工图纸
- 健身中心场馆空调通风及防排烟系统设计施工图纸
- 高层商务中心通风及防排烟系统设计施工图纸
- 5层教育中心空调通风及防排烟系统设计施工图纸
- 多层商业购物中心空调通风及防排烟系统设计施工图纸
- 多层游泳训练中心空调通风及防排烟系统设计施工图纸
- 高层实验中心大厦空调通风及防排烟系统设计施工图纸
全部评论
评论网友评论仅友表达个人看法,并不表明本站同意其观点,不得发布违反法律法规的内容!
