- 
   建筑高度类型:高层建筑
  
- 
   建筑设计结构形式:钢筋混凝土结构
  
- 
   主要部位:柱,梁,底板,楼板,剪力墙
  
- 
   楼板支撑架:扣件式
  
- 
   模板计算书:墙模板,板模板
  
- 
   施工主要设备:电锯、线坠、锤子、经纬仪、白线、钢管、铁丝等
  
  
   附件详情
  
  
   - 
    1.编制依据 1
   
- 
    2.项目概要 1
   
- 
    3.质量目标 2
   
- 
    5.墙体模板施工 4
   
- 
    5.1墙体模板 4
   
- 
    5.2墙体模板支设 6
   
- 
    5.3墙体模板拆除 7
   
- 
    6.门洞及管井洞模板施工 8
   
- 
    6.1门窗洞口模板 8
   
- 
    7.框架柱模板施工 8
   
- 
    7.1框架柱模板 8
   
- 
    7.2框架柱模板的支设 8
   
- 
    7.3框架柱模板的拆除 9
   
- 
    7.4梁柱交接处模板支设 9
   
- 
    8.梁板模板施工 10
   
- 
    9.楼梯模板施工 12
   
- 
    10.后浇带、施工缝模板施工 12
   
- 
    11.质量控制 13
   
- 
    12.成品保护 14
   
- 
    13.安全文明施工 14
   
- 
    14.环境保护措施 16
   
- 
    15.墙体模板验算 16
   
- 
    附图一: 27
   
- 
    门模板详图(窗角点同) 27
   
- 
    附图二: 27
   
- 
    楼板模板支设示意图 27
   
- 
    附图三: 异型柱阴角模节点 28
   
- 
    附图四: 29
   
- 
    附图五: 30
   
- 
    附图六: 31
   
- 
    附图七: 32
   
 
 
  
   附件详情
  
  
   工程东西长为122.2米,南北宽为78.4米,建筑面积6.5万平方米。工程地下两层,分别为地下车库和设备用房,地上十三层,其中一、二层为商业网点,三~十三层为商务办公用房。地下二层为错层结构
   
   
   
   该项目框架柱、楼梯及电梯筒体结构部分采用钢制定型大模。地下室其余部分全采用多层板模板,梁板采用碗扣式钢管排架体系;地上部分梁板采用竹胶板和碗扣式钢管排架体系。除地下部分考虑防水外,其他部位的竖向施工缝留设在梁板底和板面,水平结构施工缝留设在后浇带部位。
   
   
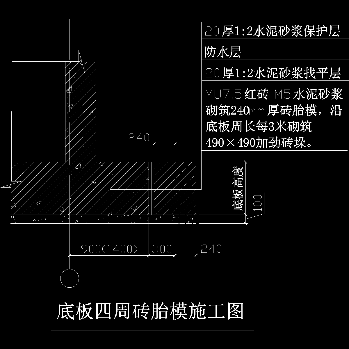
   基础底板外侧周边以及低于底板标高的坑四周采用240mm厚的砖胎模,砖胎模用M5水泥砂浆砌筑,内侧及顶面抹20mm厚1:2水泥砂浆,表面压光,阴阳角部位均做成半径不小于50mm的小圆角,沿底板周侧砖胎模每3米砌筑一490×490加劲砖垛。
   
   
   筒体及框架柱采用定型钢大模板
   
   底板上导墙、集水坑、电梯底坑、地梁吊模、后浇带模板采用多层板模。墙、板后浇带两侧采用Ф4网径、6×6网眼双层钢丝网阻隔砼,钢丝网内侧配置Ф16@100钢筋网作加劲肋。
   
   地上楼层梁、板模板:楼层梁板模板体系采用竹胶合板木龙骨钢管支撑。为了提高平台模板的周转率,同时确保梁板砼的质量,该项目使用早拆模板体系,即在快拆模板体系上每隔两立柱设一后拆支撑。.
   
   .....................
   
   后浇带垫层加厚大样图1.dwg
   
   后浇带模板图.dwg
   
   地下室外墙模板图、对拉螺栓图.bmp
   
   地下室外墙模板图、对拉螺栓图.dwg
   
   地下室外墙模板拼装加固详图.dwg
   
   地下室底板后浇带处理构造图4.dwg
   
   坡道模板支设.dwg
   
   基础反梁支模图1.dwg
   
   基础反梁支模图1_recover.dwg
   
   基础底版底坑内模支设图.dwg
   
   外墙付墙柱支模节点图.dwg
   
   外墙后浇带处防水处理节点.dwg
   
   支模图.dwg
   
   柱基下卧图9.19.dwg
   
   消防水池止水钢板位置.dwg
   
   电梯井和集水坑交界图.dwg
   
   砖胎模1.dwg