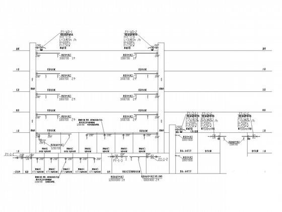
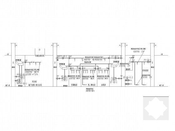
多层公共建筑空调通风排烟系统设计CAD施工图纸(风冷热泵)
- 发布时间:2023-01-14
- 评论次数:0
- 浏览次数:0
- 文件大小:6.67 MB
- 收藏次数:0
-
文件名称:
附件-995858896056956570977.rar
相关下载
- 多层公共建筑空调通风系统设计CAD施工图纸(风冷热泵)
- 多层公共建筑空调通风系统设计CAD施工图纸(风冷热泵)
- 联合厂房空调及通风排烟系统设计施工CAD图纸(风冷热泵)
- 多层公共建筑空调通风及防排烟系统设计施工图纸
- 多层公共建筑空调通风排烟系统设计施工图纸
- 商业综合楼空调通风及防排烟系统设计CAD施工图纸(风冷热泵机组)
- 26层综合楼空调通风防排烟系统设计施工CAD图纸(风冷热泵)
- 小型影剧院空调通风排烟系统设计CAD施工图纸(VRV系统风冷热泵系统)
- 多层商务酒店空调通风及防排烟系统设计CAD施工图纸(大院出品)(螺杆式风冷热泵)
- 5层大学教学行政用房空调通风防排烟系统CAD施工图纸(风冷热泵)
- 高层公共建筑空调通风设计CAD施工图纸(地源热泵系统)
- 多层公共建筑空调通风与防排烟系统设计CAD施工图纸
- 多层公共建筑通风及防排烟系统设计施工图纸
- 多层酒店暖通空调系统设计CAD施工大样图(风冷热泵机组)
- 8层电子工业厂房空调通风设计CAD施工图纸(风冷热泵)
- 精品酒店空调通风设计施工图(风冷热泵大院图纸)
- 别墅空调及通风系统设计CAD施工图纸(风冷热泵)
- 动物房通风空调设计图_风冷镙杆式热泵机组
- 别墅风冷热泵空调图纸(设计说明).dwg
- 车站风冷热泵空调设计图纸.dwg
全部评论
评论网友评论仅友表达个人看法,并不表明本站同意其观点,不得发布违反法律法规的内容!
