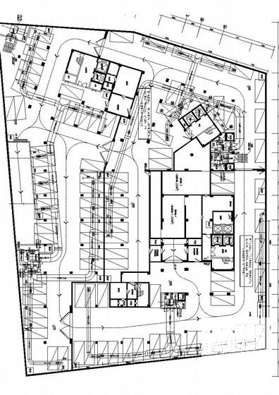
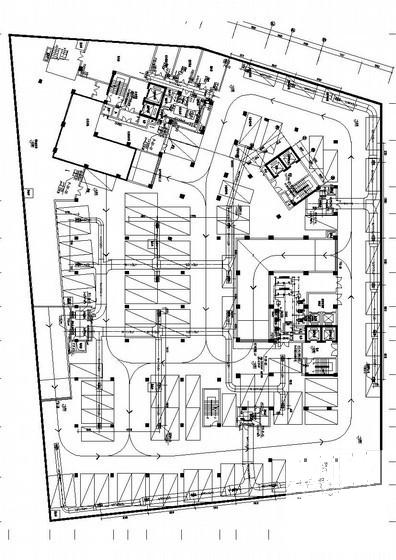
13层高档商业办公综合建筑空调通风及防排烟系统设计CAD施工图纸
- 发布时间:2022-12-20
- 评论次数:0
- 浏览次数:0
- 文件大小:5.37 MB
- 收藏次数:0
-
文件名称:
附件-995858009658989507570.rar
相关下载
- 高层商业办公综合项目空调通风及防排烟系统设计施工图纸
- 13层高档商业办公综合建筑空调通风及防排烟系统设计CAD施工大样图
- 高层商业综合体通风空调及防排烟系统设计施工图纸
- 高层商业办公楼空调通风及防排烟系统设计施工图纸
- 商业办公楼空调通风及防排烟系统设计CAD施工图纸
- 20层商业办公楼综合项目空调通风及防排烟系统设计施工图纸
- 多层商业建筑空调通风及防排烟系统设计施工图纸
- 超高层商业建筑空调通风及防排烟系统设计施工图纸
- 2层商业建筑空调通风及防排烟系统设计CAD施工图纸
- 多层商业建筑空调通风及防排烟系统设计CAD施工图纸
- 高层商业办公建筑通风及防排烟系统设计CAD施工图纸
- 22层综合建筑空调通风及防排烟系统设计施工图纸
- 多层商业综合建筑空调通风及防排烟系统设计CAD施工大样图
- 办公建筑空调通风及防排烟系统设计施工图纸
- 高层办公建筑空调通风及防排烟系统设计施工图纸
- 高层办公建筑空调通风及防排烟系统设计CAD施工图纸
- 多层商业办公楼空调通风防排烟系统设计施工图纸
- 高层办公建筑空调通风及防排烟系统(大院设计)
- 23层商业综合体空调通风及防排烟系统设计CAD施工图纸(节能设计)
- 高层商业综合体空调通风及防排烟系统设计CAD施工图纸(节能设计)
全部评论
评论网友评论仅友表达个人看法,并不表明本站同意其观点,不得发布违反法律法规的内容!
