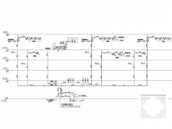
4层大剧院建筑给排水初设图纸(水幕系统大空间智能灭火)
- 发布时间:2022-10-03
- 评论次数:0
- 浏览次数:0
- 文件大小:2.62 MB
- 收藏次数:0
-
文件名称:
附件-995860968885788857808.rar
相关下载
- 4层大剧院建筑给排水初设CAD初设图纸(水幕系统大空间智能灭火)
- 3.7万平4层大型剧院建筑给排水CAD施工图纸(大空间智能灭火水幕系统)
- 现代风格大剧院方案初设图纸
- 大剧院方案CAD初设图纸
- 蛋形大剧院平面CAD初设图纸
- 6万平4层商业建筑给排水消防CAD施工图纸(大空间智能灭火系统)
- 9层大厦给排水CAD施工图纸(大空间智能型主动喷水灭火系统)
- 3层体育中心给排水CAD施工图纸(大空间智能灭火)(自喷系统原理图)
- 现代风格蛋形大剧院建筑设计初设图纸.dwg
- 4层大空间办公楼中央空调系统设计CAD初设图纸
- 5层大剧院楼梯大祥CAD图纸
- 大空间钢结构桁架檩条系统(建筑的设计)
- 3层体育中心体育馆给排水图纸(大空间灭火)
- 大空间消防给水设计施工方案图CAD图纸(喷水灭火系统)
- 11层五星级酒店消防设计CAD施工图纸(大空间智能灭火)
- 4万平米高层大厦给排水CAD施工大样图(大空间智能型主动喷水灭火系统)
- 5层商业建筑给排水CAD施工图纸(气体灭火大空间智能灭火)
- 5层大剧院建筑卫生间大祥CAD图纸
- 7层大型复杂钢混组合结构会展中心与大剧院初步设计初设图纸
- 高层框剪结构大剧院建筑施工图纸
全部评论
评论网友评论仅友表达个人看法,并不表明本站同意其观点,不得发布违反法律法规的内容!
