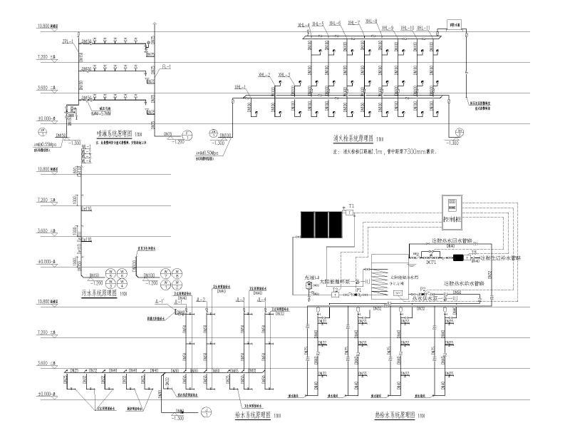
顺义3层幼儿园给排水施工图纸设计
- 发布时间:2021-12-08
- 评论次数:0
- 浏览次数:0
- 文件大小:3.49 MB
- 收藏次数:0
- 
								文件名称: 附件-996995869989977980.dwg 附件-996995869989977980.dwg
								幼儿园给排水设计下载
							
						- 顺义3层幼儿园采暖通风设计施工图纸
- 顺义区地方税务局办公楼电气CAD施工图纸
- 幼儿园给排水CAD图纸
- 幼儿园给排水设计CAD图纸
- 3层幼儿园给排水设计CAD图纸
- 顺义小区暖卫安装工程施工方案(单元式住宅)
- 社区幼儿园给排水施工图纸cad
- 幼儿园给排水消防CAD施工图纸
- 幼儿园给排水CAD施工图纸
- 3层幼儿园给排水CAD图纸
- 4层幼儿园给排水CAD图纸
- 4层幼儿园给排水CAD图纸
- 3层幼儿园给排水CAD施工图纸(甲级设计院)
- 3层幼儿园给排水CAD施工图纸设计(18个班)
- 3层幼儿园给排水CAD施工图纸设计(十二个班)
- 幼儿园室外给排水平面设计CAD施工图纸
- 5层幼儿园小学宿舍楼给排水设计CAD施工图纸
- 2层幼儿园给排水设计CAD施工图纸
- 3层小型幼儿园给排水设计CAD施工方案图纸
- 3层红旗幼儿园给排水设计CAD施工图纸
全部评论
						
							评论网友评论仅友表达个人看法,并不表明本站同意其观点,不得发布违反法律法规的内容!
						
						
 
	              	 
	              	 
	              	 
	              	 
	              	