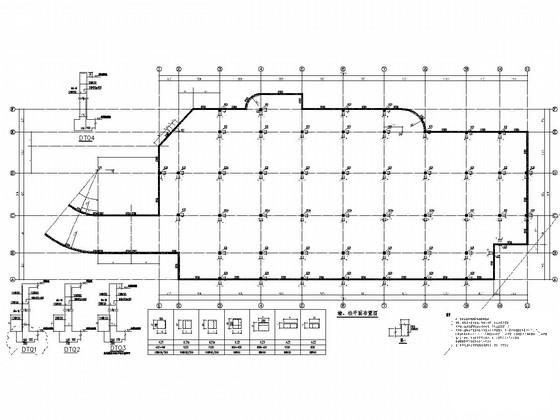
地下单层框架结构独立车库结构施工图纸
- 发布时间:2021-12-04
- 评论次数:0
- 浏览次数:0
- 文件大小:1.06 MB
- 收藏次数:0
-
文件名称:
附件-995888088678099550578.zip
地下车库结构图纸下载
- 单层矩形柱框架结构地下车库结构CAD施工图纸(独立基础)
- 地下单层框架结构独立车库结构CAD施工图纸
- 国内小区单层框架结构地下车库结构施工图纸(车库)
- 地下1层框架结构地下车库结构CAD施工图纸(独立基础)
- 地下单层框架结构地下车库结构施工图纸
- 地下单层混凝土框架结构地下车库结构施工图纸
- 地下单层框架结构地下车库结构设计施工图纸
- 地下单层框架结构地下车库结构CAD施工图纸
- 地下单层框架结构地下车库结构施工大样图
- 地下单层框架结构地下车库结构CAD施工大样图
- 地下单层框架结构地下车库结构CAD施工大样图
- 独立基础框架结构地下车库结构CAD施工图纸
- 海单层框架结构地下车库结构施工图纸
- 单层框架结构地下车库结构设计施工图纸
- 单层现浇框架结构地下车库结构设计施工图纸
- 地下单层框架结构车库结构设计施工图纸
- 单层框架结构地下车库结构施工图纸
- 地下单层框架结构汽车库结构CAD施工图纸
- 单层矩形柱框架结构地下车库结构CAD施工图纸
- 独立地下车库结构施工图纸
全部评论
评论网友评论仅友表达个人看法,并不表明本站同意其观点,不得发布违反法律法规的内容!
