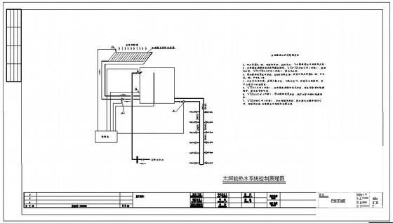
小区住宅楼太阳能热水系统图纸
- 发布时间:2021-12-02
- 评论次数:0
- 浏览次数:0
- 文件大小:1.35 MB
- 收藏次数:0
-
文件名称:
附件-995860869596778905787.rar
太阳能热水系统图纸下载
- 高速公路太阳能热水系统图纸
- 太阳能热水系统CAD大样图纸
- 高中宿舍太阳能热水系统CAD图纸
- 高中宿舍太阳能热水系统CAD图纸
- 太阳能热水系统CAD图纸
- 太阳能热水系统给排水系统图纸(泳池加热系统)
- 太阳能热水系统给排水系统CAD图纸(泳池加热系统)
- 宾馆太阳能热水系统布置图纸及运行原理CAD图纸
- 11层住宅楼给排水施工图纸(太阳能热水系统)
- 太阳能热水系统展开原理CAD图纸
- 8层后勤服务中心楼给排水图纸(太阳能热水系统)
- 商住小区建筑给排水施工图纸(太阳能热水系统)
- 5层宿舍楼建筑给排水图纸(太阳能热水系统)
- 高层酒店给排水消防CAD施工图纸(太阳能热水系统)
- 3层幼儿园给排水CAD图纸(太阳能热水系统)
- 6层商住楼给排水CAD图纸(太阳能热水系统)
- 宾馆给排水及太阳能热水系统CAD施工图纸
- 空气源热泵太阳能热水系统运行原理CAD图纸
- 太阳能冷热水系统CAD图纸设计说明及计算
- 高层小区给排水CAD施工图纸(太阳能热水系统)
全部评论
评论网友评论仅友表达个人看法,并不表明本站同意其观点,不得发布违反法律法规的内容!
