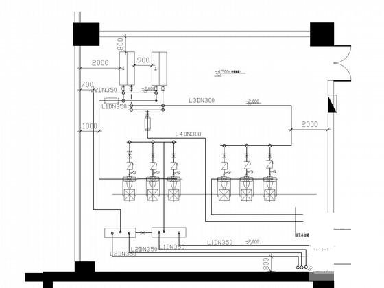
综合办公建筑空调通风排烟系统初步设计图纸(机房)(水冷式冷水机组)
- 发布时间:2023-02-15
- 评论次数:0
- 浏览次数:0
- 文件大小:3.7 MB
- 收藏次数:0
- 
								文件名称: 附件-995858588655507555506.rar 附件-995858588655507555506.rar
								相关下载
							
						- 综合办公建筑空调通风排烟系统初步设计初设图纸
- 19层科研办公建筑空调通风及防排烟系统(制冷机房)
- 商业建筑空调及通风系统设计CAD施工图纸(水冷式冷水机组)
- 商业建筑空调及通风系统设计CAD施工图纸(水冷式冷水机组)
- 29层商业宾馆办公综合楼通风空调排烟系统设计CAD施工图纸(机房)(离心式冷水机组)
- 13层公共民用办公建筑通风空调及防排烟系统设计CAD施工图纸(制冷机房工艺通风)
- 13层公共民用办公建筑通风空调及防排烟系统设计CAD施工图纸(制冷机房工艺通风)
- 办公建筑空调通风及防排烟系统设计施工图纸
- 高层办公建筑空调通风及防排烟系统设计施工图纸
- 高层办公建筑空调通风及防排烟系统设计CAD施工图纸
- 高层行政办公建筑空调通风人防排烟系统
- 高层办公建筑空调通风及防排烟系统(大院设计)
- 高层科研办公建筑空调通风及防排烟系统
- 15层综合医院楼空调通风及防排烟系统初步设计初设图纸
- 机房模块楼空调通风排烟初步设计初设大样图
- 办公建筑空调通风及防排烟系统设计CAD施工图纸(变冷媒流量空调系统)
- 5层大型商业楼空调通风及防排烟系统改造设计CAD施工图纸(机房设计)(螺杆式冷水机组)
- 高层商业宾馆办公综合楼通风空调排烟系统设计施工CAD图纸(机房)
- 超高层综合建筑空调通风防排烟系统(制冷机房人防设计)
- 超高层商业综合体空调通风防排烟系统(制冷机房、人防).dwg
全部评论
						
							评论网友评论仅友表达个人看法,并不表明本站同意其观点,不得发布违反法律法规的内容!
						
						
 
	              	 
	              	 
	              	