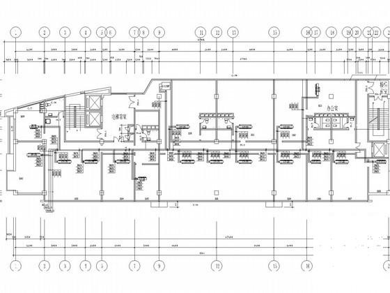
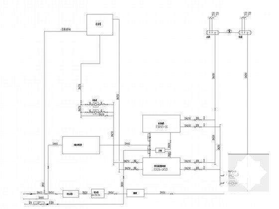
多层综合商业办公楼空调通风系统设计CAD施工图纸(水冷式立式空调机组)
- 发布时间:2022-12-30
- 评论次数:0
- 浏览次数:0
- 文件大小:4.6 MB
- 收藏次数:0
- 
								文件名称: 附件-995858890857577795795.rar 附件-995858890857577795795.rar
								相关下载
							
						- 多层综合商业办公楼空调通风系统设计CAD施工图纸(水冷式立式空调机组)
- 商业建筑空调及通风系统设计CAD施工图纸(水冷式冷水机组)
- 商业建筑空调及通风系统设计CAD施工图纸(水冷式冷水机组)
- 多层商业建筑空调通风系统设计施工图纸
- 多层商业综合楼空调通风系统设计施工图纸
- 多层商业办公楼空调及通风系统设计施工图纸
- 多层商业办公楼空调通风防排烟系统设计施工图纸
- 商业办公楼空调通风系统设计CAD施工图纸(VRV空调系统).dwg
- 多层办公楼空调及通风系统设计2019
- 12层商业综合体空调及通风排烟设计CAD施工图纸(VRV空调机组)
- 13层商业综合体空调及通风排烟设计CAD施工图纸(VRV空调机组)
- 4层商业综合楼空调通风系统设计CAD施工图纸(风冷模块机组)
- 商业综合楼空调通风及防排烟系统设计CAD施工图纸(风冷热泵机组)
- 多层宾馆建筑空调通风系统设计CAD施工图纸(空调配管)(冷热水机组)
- 综合办公建筑空调通风排烟系统初步设计图纸(机房)(水冷式冷水机组)
- 多层商业办公区空调及通风防排烟系统设计CAD施工图纸(空气源热泵多联空调机组)
- 综合小型办公楼空调系统设计CAD施工图纸(风冷热泵机组)
- 多层餐饮商业中心空调通风系统设计CAD施工图纸(节能设计)
- 8层商业办公楼空调及通风系统设计CAD施工图纸(VRF空调加新风机组)(公共卫生间)
- 多层商业中心空调通风排烟系统设计施工图纸
全部评论
						
							评论网友评论仅友表达个人看法,并不表明本站同意其观点,不得发布违反法律法规的内容!
						
						
 
	              	 
	              	 
	              	 
	              	