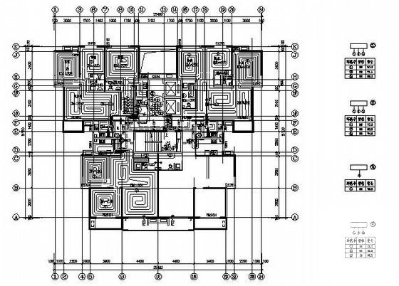
高层住宅楼采暖通风设计CAD图纸(地下室顶板)
- 发布时间:2023-01-06
- 评论次数:0
- 浏览次数:0
- 文件大小:1.02 MB
- 收藏次数:0
- 
								文件名称: 附件-995858658599585585500.rar 附件-995858658599585585500.rar
								相关下载
							
						- 高档住宅楼小区采暖通风CAD施工图纸(2栋高层,地下室,会所)
- 高层住宅楼采暖通风系统设计CAD施工图纸(人防设计)
- 高层住宅楼采暖通风系统设计CAD施工图纸(人防设计)
- 高层住宅楼采暖通风系统设计施工图纸
- 高层商业住宅楼采暖通风系统设计施工图纸
- 高层住宅楼采暖通风排烟加压送风系统设计施工图纸
- 高层住宅楼区采暖通风设计CAD施工图纸
- 高层住宅楼采暖通风设计CAD施工图纸
- 高层住宅楼采暖通风设计CAD施工图纸
- 31层高层住宅楼区采暖通风设计CAD施工图纸
- 高层住宅楼采暖通风系统设计CAD施工图纸
- 高层住宅楼采暖通风设计CAD施工图纸
- 高层住宅楼区采暖通风设计CAD施工图纸
- 高层商业住宅楼采暖通风系统设计CAD施工图纸
- 高层商业办公楼地下室顶板加固施工方案
- 超高层建筑地下室顶板加固施工方案
- 25000平米高层住宅楼采暖通风设计大样图
- 高层住宅楼采暖通风空调系统设计施工大样图
- 高层住宅楼采暖通风系统设计施工大样图
- 高层住宅楼采暖通风设计CAD施工大样图
全部评论
						
							评论网友评论仅友表达个人看法,并不表明本站同意其观点,不得发布违反法律法规的内容!
						
						
 
	              	 
	              	 
	              	