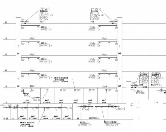
多层公共酒店空调通风系统设计CAD施工图纸(全热回收热量)(机械加压送风)
- 发布时间:2023-01-04
- 评论次数:0
- 浏览次数:0
- 文件大小:9.43 MB
- 收藏次数:0
-
文件名称:
附件-995857950080057576898.rar
相关下载
- 多层公共酒店空调通风系统设计CAD施工图纸(全热回收热量)
- 多层办公楼空调通风排烟加压送风系统设计施工图纸
- 30层酒店通风及排烟系统设计CAD施工图纸(机械加压送风系统)
- 30层酒店通风及排烟系统设计CAD施工图纸(机械加压送风系统)
- 全热回收水源热泵中央空调及热水系统图纸.dwg
- 28层大型商业广场通风排烟设计CAD施工图纸(机械加压送风)
- 国内25层综合楼暖通空调设计CAD施工图纸(机械加压送风)
- 11层住宅楼采暖通风图纸(设计说明)(机械加压送风)
- 高层住宅小区通风及防排烟设计(机械加压送风)
- 高层住宅小区通风防排烟系统设计CAD施工图纸(机械加压送风)
- 22层住宅楼通风图纸(地下1层)(机械加压送风)
- 高层住宅楼采暖通风排烟加压送风系统设计施工图纸
- 5层科研教育中心空调通风防排烟加压送风系统设计CAD施工图纸(机房图纸)
- 30层住宅楼防排烟CAD图纸(设计说明)(机械加压送风)
- 19层层国际大酒店空调施工改造图纸(加压送风地下室)
- 热回收式新风系统布局CAD图纸
- 高层住宅楼小区采暖通风及防排烟系统设计CAD施工图纸(机械加压送风)
- 9层温泉酒店空调采暖系统设计CAD施工图纸(风冷热泵全热新风)
- 9层温泉酒店空调采暖系统设计施工CAD图纸(风冷热泵全热新风)
- 13层酒店中央空调系统设计方案设计CAD初设图纸(全热新风)
全部评论
评论网友评论仅友表达个人看法,并不表明本站同意其观点,不得发布违反法律法规的内容!
