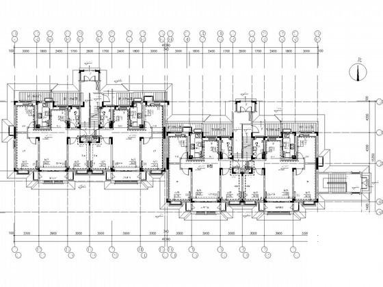
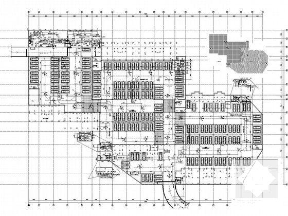
多层住宅楼小区采暖通风系统设计CAD施工图纸(多种建筑型式)
- 发布时间:2023-01-03
- 评论次数:0
- 浏览次数:0
- 文件大小:9.71 MB
- 收藏次数:0
- 
								文件名称: 附件-995858000957587705877.rar 附件-995858000957587705877.rar
								相关下载
							
						- 多层住宅小区采暖通风系统设计CAD施工大样图(多种建筑型式)
- 国内多层住宅楼小区采暖通风系统设计CAD施工图纸
- 多层住宅楼小区采暖通风系统设计CAD施工图纸
- 多层住宅楼建筑采暖通风排烟系统设计CAD施工图纸(机械采暖系统)
- 多层住宅楼建筑采暖通风系统设计CAD施工图纸
- 多层住宅小区采暖空调通风系统设计CAD施工图纸
- 多层公寓采暖通风系统设计施工CAD图纸
- 多层住宅楼小区采暖通风及防排烟系统设计CAD施工图纸
- 多层住宅小区采暖通风排烟系统设计施工大样图
- 多层住宅小区采暖通风系统设计施工大样图
- 多层住宅小区采暖通风系统设计CAD施工大样图
- 多层住宅楼采暖通风系统设计CAD施工图纸
- 多层住宅楼采暖通风系统设计CAD施工图纸
- 多层住宅楼采暖通风系统设计CAD施工图纸
- 多层住宅楼采暖通风系统设计CAD施工图纸
- 多层住宅建筑采暖通风排烟系统设计CAD施工图纸(机械采暖系统)
- 多层商业建筑采暖通风设计施工图纸
- 多层住宅楼采暖及通风系统设计CAD施工大样图
- 多层教育建筑空调通风系统设计CAD施工图纸(采暖设计)
- 多层体育建筑采暖通风系统设计施工图纸
全部评论
						
							评论网友评论仅友表达个人看法,并不表明本站同意其观点,不得发布违反法律法规的内容!
						
						
 
	              	 
	              	 
	              	 
	              	 
	              	