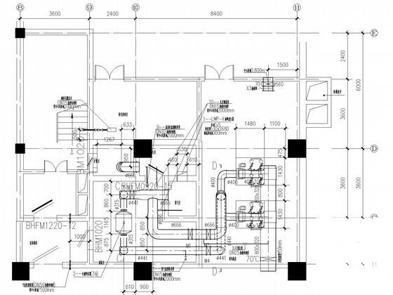
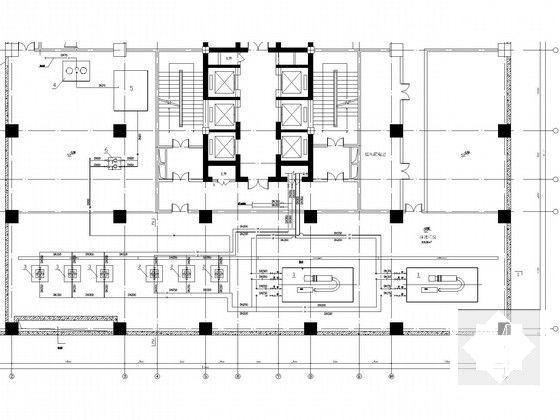
21层科研办公楼空调通风设计CAD施工图纸(人防地下室)
- 发布时间:2022-12-30
- 评论次数:0
- 浏览次数:0
- 文件大小:1.92 MB
- 收藏次数:0
- 
								文件名称: 附件-995858556977567895788.rar 附件-995858556977567895788.rar
								相关下载
							
						- 科研楼通风空调及防排烟设计CAD施工图纸(人防设计)
- 科研办公楼空调通风设计施工图纸(知名设计院)
- 3层科研中心空调通风图纸
- 办公楼地下室人防通风设计CAD施工图纸
- 多层科研办公楼空调通风系统设计施工图纸
- 地下室人防通风设计CAD施工图纸
- 22层科研办公楼空调通风设计CAD施工大样图
- 防空地下室人防通风设计_空调设备安装大样
- 市政办公楼地下室人防通风工程CAD施工图纸
- 高层办公楼VRV空调通风排烟及人防设计CAD施工图纸
- 21层办公楼空调设计CAD施工图纸(地下室通风排烟)
- 电子科研楼空调通风设计CAD施工图纸(净化空调系统)
- 7层科研办公楼空调通风设计CAD施工图纸(知名设计院)
- 上7层科研楼空调通风图纸.dwg
- 多层实验科研建筑空调通风系统设计CAD施工大样图(净化空调)
- 8层办公楼通风防排烟设计CAD施工图纸(地下室、人防)
- 5层科研办公楼空调通风系统设计CAD施工图纸(多联式系统)
- 高层办公楼通风防排烟设计CAD施工大样图(地下室、人防)
- 11层医护楼空调通风设计CAD施工图纸(人防通风设计)
- 多层科研中心空调通风及防排烟系统设计施工CAD图纸(节能设计)
全部评论
						
							评论网友评论仅友表达个人看法,并不表明本站同意其观点,不得发布违反法律法规的内容!
						
						
 
	              	 
	              	 
	              	 
	              	 
	              	