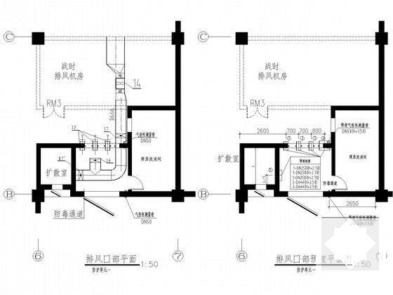
市政办公楼地下室人防通风工程CAD施工图纸
- 发布时间:2022-12-30
- 评论次数:0
- 浏览次数:0
- 文件大小:1.58 MB
- 收藏次数:0
- 
								文件名称: 附件-995858576599756988869.rar 附件-995858576599756988869.rar
								相关下载
							
						- 办公楼地下室人防通风设计CAD施工图纸
- 地下室人防通风设计CAD施工图纸
- 21层科研办公楼空调通风设计CAD施工图纸(人防地下室)
- 8层办公楼通风防排烟设计CAD施工图纸(地下室、人防)
- 高层办公楼通风防排烟设计CAD施工大样图(地下室、人防)
- 中医院地下室人防工程施工图纸
- 地下室人防工程施工图纸(负荷计算书)
- 标准厂房工程地下室通风排烟及人防设计CAD施工图纸(人防计算书)
- 商业大厦地下室人防设备安装工程施工方案
- 29000平米地下室人防通风设计施工图纸
- 教学楼地下室人防通风平面施工图纸
- 高层建筑地下室人防通风设计施工图纸
- 地下室人防通风工程设计CAD施工图纸(地下1层,)
- 地下室人防通风工程设计CAD施工图纸
- 小区地下室人防通风设计施工大样图
- 30000平米地下室人防通风工程设计施工大样图
- 地下室消防及人防通风设计施工大样图
- 人防地下室防护通风设计CAD施工大样图
- 防空地下室人防通风设计_空调设备安装大样
- 人防地下室大样
全部评论
						
							评论网友评论仅友表达个人看法,并不表明本站同意其观点,不得发布违反法律法规的内容!
						
						
 
	              	 
	              	 
	              	 
	              	 
	              	