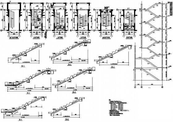
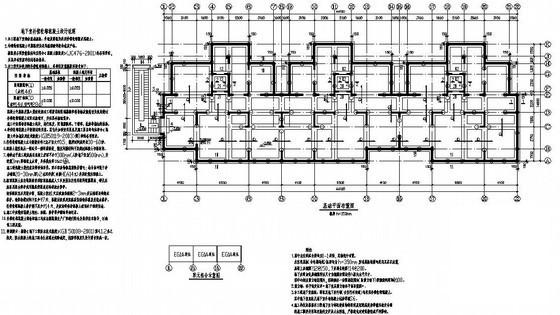
18层剪力墙高层住宅楼建筑结构设计CAD施工图纸(平面布置图)
- 发布时间:2022-11-23
- 评论次数:0
- 浏览次数:0
- 文件大小:7.62 MB
- 收藏次数:0
- 
								文件名称: 附件-995876999080968787787.rar 附件-995876999080968787787.rar
								相关下载
							
						- 24层剪力墙高层住宅楼结构施工图平面布置图
- 高层剪力墙结构住宅楼结构设计CAD施工图纸(平面布置图)
- 超高层剪力墙结构住宅楼部分结构设计CAD施工图纸(平面布置图)
- 18层剪力墙住宅楼结构设计施工图纸(平面布置图)
- 11层剪力墙住宅楼结构设计施工图纸(平面布置图)
- 11层框架剪力墙住宅楼结构设计图纸(平面布置图)
- 12层剪力墙住宅楼结构设计图纸(平面布置图)
- 36层剪力墙结构住宅楼结构设计CAD图纸(平面布置图)
- 18层剪力墙住宅楼结构设计图纸(平面布置图)
- 11层剪力墙住宅楼结构设计图纸(平面布置图)
- 18层剪力墙结构住宅楼结构设计图纸(平面布置图)
- 高层剪力墙结构住宅楼结构设计CAD施工图纸(基础平面图)
- 高层剪力墙住宅楼结构设计CAD图纸(筏板平面配筋图)
- 高层剪力墙结构住宅楼结构施工图平面图
- 高层框架剪力墙医院住院部大楼结构施工图纸平面布置图
- 11层短肢剪力墙小高层结构施工图纸(平面布置图)
- 高层剪力墙结构住宅楼结构设计施工图纸
- 高层剪力墙住宅楼结构设计施工图纸
- 高层剪力墙结构住宅楼结构设计CAD施工图纸
- 11层框架剪力墙小高层住宅楼结构CAD施工图纸(桩基础)(平面布置图)
全部评论
						
							评论网友评论仅友表达个人看法,并不表明本站同意其观点,不得发布违反法律法规的内容!
						
						
 
	              	 
	              	 
	              	