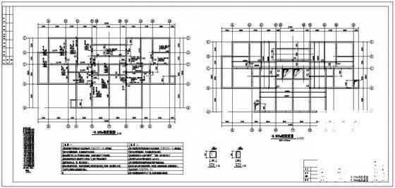
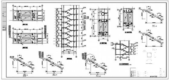
18层剪力墙住宅楼结构设计施工图纸(平面布置图)
- 发布时间:2022-11-23
- 评论次数:0
- 浏览次数:0
- 文件大小:1.8 MB
- 收藏次数:0
- 
								文件名称: 附件-995876965897805580876.rar 附件-995876965897805580876.rar
								相关下载
							
						- 11层剪力墙住宅楼结构设计施工图纸(平面布置图)
- 11层框架剪力墙住宅楼结构设计图纸(平面布置图)
- 12层剪力墙住宅楼结构设计图纸(平面布置图)
- 36层剪力墙结构住宅楼结构设计CAD图纸(平面布置图)
- 18层剪力墙住宅楼结构设计图纸(平面布置图)
- 11层剪力墙住宅楼结构设计图纸(平面布置图)
- 18层剪力墙结构住宅楼结构设计图纸(平面布置图)
- 12层剪力墙结构住宅楼结构CAD施工图纸(平面布置图)
- 22层桩基础剪力墙住宅楼结构CAD施工图纸(平面布置图)
- 11层框架剪力墙结构住宅楼结构CAD施工图纸(平面布置图)
- 34层剪力墙结构住宅楼结构CAD施工图纸(平面布置图)
- 15层剪力墙结构住宅楼结构CAD施工图纸(平面布置图)
- 18层剪力墙住宅楼结构CAD施工图纸(平面布置图)
- 24层桩基础剪力墙住宅楼结构CAD施工图纸(平面布置图)
- 18层框架剪力墙结构住宅楼结构CAD施工图纸(平面布置图)
- 18层剪力墙住宅楼结构CAD施工图纸(平面布置图)
- 15层剪力墙结构住宅楼结构施工图平面布置图
- 23层剪力墙结构住宅楼结构施工大样图平面布置图
- 18层剪力墙结构住宅楼结构施工图平面布置图
- 18层剪力墙结构住宅楼结构施工图节点详图,平面布置图
全部评论
						
							评论网友评论仅友表达个人看法,并不表明本站同意其观点,不得发布违反法律法规的内容!
						
						
 
	              	 
	              	 
	              	