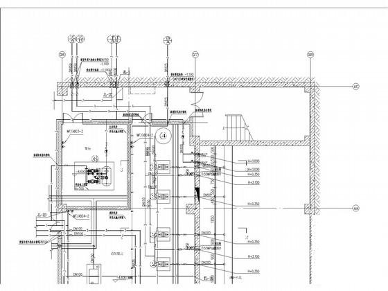
教学楼给排水及消防CAD施工图纸
- 发布时间:2022-10-07
- 评论次数:0
- 浏览次数:0
- 文件大小:3.01 MB
- 收藏次数:0
-
文件名称:
附件-995859877875755707057.rar
相关下载
- 办公及教学楼电气消防CAD图纸
- 高层酒店给排水及消防图纸
- 酒店给排水及消防图纸.dwg
- 中小学教学楼给排水及消防CAD施工图纸(雨水系统)
- 11层教学楼及学院楼给排水CAD施工图纸(给水、排水、消防平面及系统图纸等).dwg
- 图纸书城给排水及消防设计图纸.dwg
- 宾馆给排水及消防平面图纸
- 工业厂房生活及消防给排水设计图纸
- 大型商场给排水及消防CAD图纸
- 住宅楼给排水及消防CAD图纸
- 7层办公搂给排水及消防CAD图纸
- 住宅楼给排水及消防CAD图纸
- 小区室外给排水及消防总平面CAD图纸
- 厂给排水及消防综合管线图纸
- 宾馆给排水及消防平面CAD图纸
- 地下室给排水及消防平面CAD图纸
- 高层酒店给排水及消防设计CAD图纸.dwg
- 办公楼、商场给排水及消防图纸.dwg
- 门诊空调及给排水消防图纸.dwg
- 5层大学教学楼给排水消防CAD施工图纸
全部评论
评论网友评论仅友表达个人看法,并不表明本站同意其观点,不得发布违反法律法规的内容!
