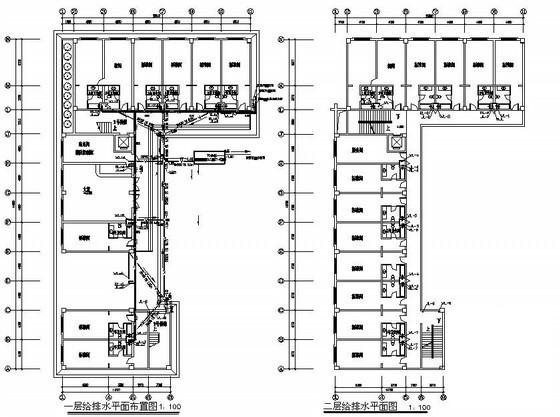
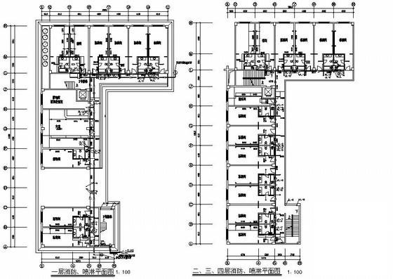
宾馆给排水及消防平面图纸
- 发布时间:2021-11-28
- 评论次数:0
- 浏览次数:0
- 文件大小:0.47 MB
- 收藏次数:0
-
文件名称:
附件-995860585857577775958.rar
宾馆给排水图纸下载
- 宾馆给排水及消防平面CAD图纸
- 宾馆消防给排水图纸
- 小区室外给排水及消防总平面CAD图纸
- 地下室给排水及消防平面CAD图纸
- 高层宾馆给排水及消防CAD施工图纸(地下室)
- 四星级宾馆给排水消防竣工图纸平面图
- 3层宾馆水暖给排水消防平面图纸.dwg
- 3层宾馆平面及顶面图纸.
- 11层大型宾馆消防给排水CAD图纸
- 11层宾馆给排水消防设计CAD图纸
- 高层新华大厦宾馆建筑消防平面CAD图纸
- 21层层宾馆给排水消防CAD施工图纸(气体消防系统)
- 高层酒店给排水及消防图纸
- 酒店给排水及消防图纸.dwg
- 地上15层宾馆给排水cad图纸,平面图和消防系统图、大样图等
- 宾馆给排水图纸
- 3层大型商场给排水及消防平面CAD施工图纸
- 厂房给排水及消防喷淋CAD图纸(总平面图)
- 大型商场给排水及消防平面CAD施工图纸
- 宾馆消防报警系统CAD图纸
全部评论
评论网友评论仅友表达个人看法,并不表明本站同意其观点,不得发布违反法律法规的内容!
