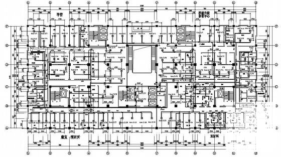
57366平米19层医院病房楼空调通风图纸
- 发布时间:2021-11-25
- 评论次数:0
- 浏览次数:0
- 文件大小:2.89 MB
- 收藏次数:0
- 
								文件名称: 附件-995858777875877756978.rar 附件-995858777875877756978.rar
								病房楼空调下载
							
						- 10层医院病房楼空调图纸
- 医院病房楼空调CAD图纸
- 15层医院病房楼通风空调系统设计施工图纸
- 20层医院病房楼净化空调通风系统设计施工图纸
- 高层医院工程病房楼空调通风防排烟系统设计施工图纸
- 21层大型医院病房楼空调通风施工图(知名院图纸,详图丰富)
- 20层医院病房楼净化空调通风系统设计CAD施工图纸
- 人民医院病房楼空调通风设计CAD施工图纸
- 10691平米医院病房楼空调通风施工大样图
- 21层大型医院病房楼空调通风全套CAD施工图
- 医院综合病房楼通风防排烟施工方案
- 上6层医院病房楼空调图纸.dwg
- 44207平米19层医院病房综合楼空调通风排烟系统设计施工图纸
- 医院5512.60平米多层综合病房楼空调通风及防排烟系统设计施工图纸
- 27829平米10层人民医院病房楼空调通风设计施工图纸
- 医院多层综合病房楼空调通风及防排烟系统设计CAD施工图纸
- 15层医院病房楼通风空调系统设计CAD施工图纸(消防系统设计)
- 7层医院层流病房空调施工图纸
- 医院血液病房净化空调施工图纸
- 医院病房楼给排水图纸
全部评论
						
							评论网友评论仅友表达个人看法,并不表明本站同意其观点,不得发布违反法律法规的内容!
						
						
 
	              	 
	              	 
	              	