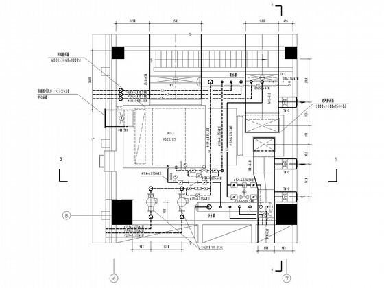
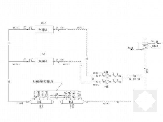
4层8992平米交通站房空调通风系统设计施工图纸
- 发布时间:2021-11-25
- 评论次数:0
- 浏览次数:0
- 文件大小:2.21 MB
- 收藏次数:0
- 
								文件名称: 附件-995858578079978505885.rar 附件-995858578079978505885.rar
								空调通风系统设计下载
							
						- 4层交通站房空调通风系统设计CAD施工图纸(风冷热泵系统)
- 动物房空调通风系统设计施工图纸
- 2层城际轨道交通站房电气CAD施工图纸(照明系统设计)
- 2层5909平米火车站房空调通风系统设计施工图纸
- 2层火车站房空调通风系统设计施工图纸
- 高层安置房暖通空调通风系统设计CAD施工图纸
- 2层站房空调及通风排烟系统设计施工CAD图纸
- 洗衣房通风系统
- 20层办公楼通风空调防排烟系统设计CAD施工图纸(锅炉房设计)
- 高层办公楼通风空调防排烟系统设计施工CAD图纸(锅炉房设计)
- 动物房通风排烟及净化空调图纸
- 5986平米2层站房空调及通风排烟系统设计施工图纸
- 商务办公楼空调通风系统设计CAD施工图纸(蓄冰空调系统)
- 商业办公楼空调通风系统设计CAD施工图纸(VRV空调系统).dwg
- 多层商场建筑空调通风系统设计施工图纸
- 开阔型商场空调通风系统设计施工图纸
- 多层制药车间空调通风系统设计施工图纸
- 商务大厦空调通风系统设计施工图纸
- 3层别墅空调通风系统设计施工图纸
- 仓库工程通风空调系统设计施工图纸
全部评论
						
							评论网友评论仅友表达个人看法,并不表明本站同意其观点,不得发布违反法律法规的内容!
						
						
 
	              	 
	              	 
	              	 
	              	 
	              	