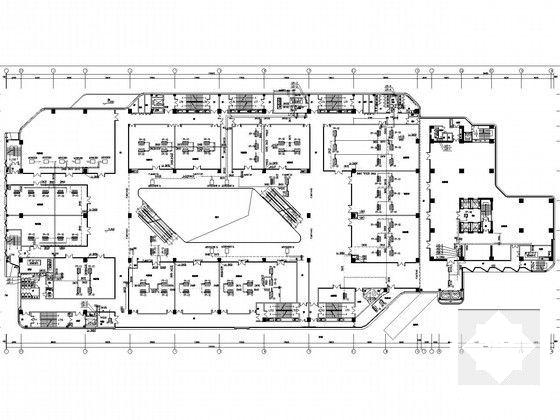
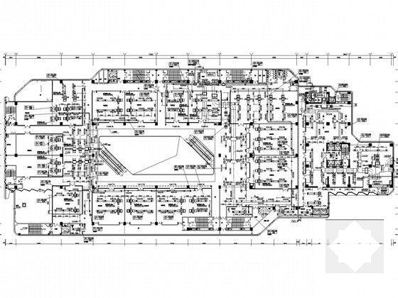
86390平米24层大型火车站广场停车场空调通风与防排烟系统设计施工图纸
- 发布时间:2021-11-25
- 评论次数:0
- 浏览次数:0
- 文件大小:7.95 MB
- 收藏次数:0
-
文件名称:
附件-995858589978578058560.rar
通风与防排烟系统下载
- 24层大型火车站广场停车场空调通风与防排烟系统设计施工图纸
- 4层大型火车站广场空调通风及防排烟系统设计CAD施工大样图(大院出品人防设计)
- 35245平米4层大型火车站广场空调通风及防排烟系统设计施工大样图
- 11层大型商业广场空调通风及防排烟系统设计CAD施工图纸(采暖设计)
- 30810平米大型展馆空调通风及防排烟系统设计施工图纸
- 5层大型仓库空调通风及防排烟系统设计施工图纸
- 大型展馆空调通风及防排烟系统设计施工图纸
- 大型仓库空调通风及防排烟系统设计CAD施工图纸
- 多层商业广场空调通风及防排烟系统设计施工图纸
- 大型人防工程空调通风及防排烟系统设计施工大样图
- 6层现代大型火车站工程空调通风及防排烟系统设计施工CAD大样图(采暖设计)
- 地下停车场通风防排烟系统设计CAD施工图纸(人防设计)
- 火车站地下空间通风防排烟系统设计施工大样图
- 14878平米6层现代大型火车站工程空调通风及防排烟系统设计施工大样图
- 5800平米地下停车场通风防排烟系统设计施工图纸
- 4层大型工业厂房空调通风及防排烟系统设计CAD施工图纸(洁净空调)
- 4层大型工业厂房空调通风及防排烟系统设计CAD施工图纸(洁净空调)
- 4层大型体育中心空调通风及防排烟系统设计CAD施工图纸(采暖设计)
- 3层大型体育中心空调通风及防排烟系统设计CAD施工图纸(大院设计)
- 大型高层商务酒店空调通风及防排烟系统设计施工CAD图纸(大院设计)
全部评论
评论网友评论仅友表达个人看法,并不表明本站同意其观点,不得发布违反法律法规的内容!
