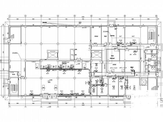
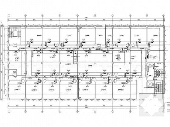
14878平米6层现代大型火车站工程空调通风及防排烟系统设计施工大样图
- 发布时间:2021-11-24
- 评论次数:0
- 浏览次数:0
- 文件大小:1.89 MB
- 收藏次数:0
- 
								文件名称: 附件-995857996987608877586.rar 附件-995857996987608877586.rar
								通风工程防排烟下载
							
						- 6层现代大型火车站工程空调通风及防排烟系统设计施工CAD大样图(采暖设计)
- 大型人防工程空调通风及防排烟系统设计施工大样图
- 现代大型城市地下轨道空调通风及防排烟系统设计施工大样图
- 现代大型地铁站空调通风及防排烟系统设计施工大样图
- 现代大型交通建筑空调通风及防排烟系统设计施工CAD图纸(大院设计)
- 10737平米现代大型地铁站建筑空调通风及防排烟系统设计施工图纸
- 现代大型地铁站建筑空调通风及防排烟系统设计施工图纸
- 4层大型火车站广场空调通风及防排烟系统设计CAD施工大样图(大院出品人防设计)
- 35245平米4层大型火车站广场空调通风及防排烟系统设计施工大样图
- 现代多层商业街空调通风及防排烟系统设计施工图纸
- 现代多层厂房建筑空调通风及防排烟系统(净化空调)
- 30810平米大型展馆空调通风及防排烟系统设计施工图纸
- 5层大型仓库空调通风及防排烟系统设计施工图纸
- 大型展馆空调通风及防排烟系统设计施工图纸
- 大型仓库空调通风及防排烟系统设计CAD施工图纸
- 火车站地下空间通风防排烟系统设计施工大样图
- 12537平米大型网球场空调通风及防排烟系统设计施工大样图
- 大型地铁站建筑空调通风及防排烟系统设计施工大样图
- 多层大型商业楼空调通风及防排烟系统改造设计施工大样图
- 大型现代地铁站空调通风及防排烟系统设计CAD施工大样图(大院设计).dwg
全部评论
						
							评论网友评论仅友表达个人看法,并不表明本站同意其观点,不得发布违反法律法规的内容!
						
						
 
	              	 
	              	 
	              	 
	              	 
	              	