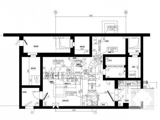
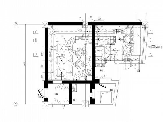
5800平米地下停车场通风防排烟系统设计施工图纸
- 发布时间:2021-11-24
- 评论次数:0
- 浏览次数:0
- 文件大小:1.14 MB
- 收藏次数:0
-
文件名称:
附件-995857998955859786980.rar
地下停车场设计施工下载
- 酒店地下停车场管理系统电气CAD图纸
- 安置房人防电气(地下停车场)
- 地下停车场通风防排烟系统设计CAD施工图纸(人防设计)
- 地下停车场出入口钢结构雨棚设计详施工图纸
- 地下停车场出入口钢结构雨棚设计详细CAD施工图纸
- 居住区地下停车场设计CAD施工方案图纸
- 地下停车场交通设施工程设计CAD图纸
- 框剪结构商业网点建筑方案设计CAD图纸(地下停车场)
- 3层影剧院建筑方案设计图纸(地下停车场)
- 小区地下停车场平面图纸设计方案
- CAD四星级酒店平面设计方案(地下停车场)
- 地下上商场停车场电气设计图纸.dwg
- 商住楼地下停车场通风设计CAD图纸.dwg
- 4114平米单层地下停车场电气施工图纸
- 12层商住楼给排水CAD施工图纸(地下停车场)
- 居住区大型地下停车场CAD施工图纸(人防工程)
- 国内高层办公楼拆除施工方案(地下停车场)
- 公园南门广场柱加固补强工程施工方案(地下停车场)
- 地下停车场电气CAD施工图纸(消防联动控制系统)
- 酒店地下停车场管理系统电气CAD施工大样图
全部评论
评论网友评论仅友表达个人看法,并不表明本站同意其观点,不得发布违反法律法规的内容!
