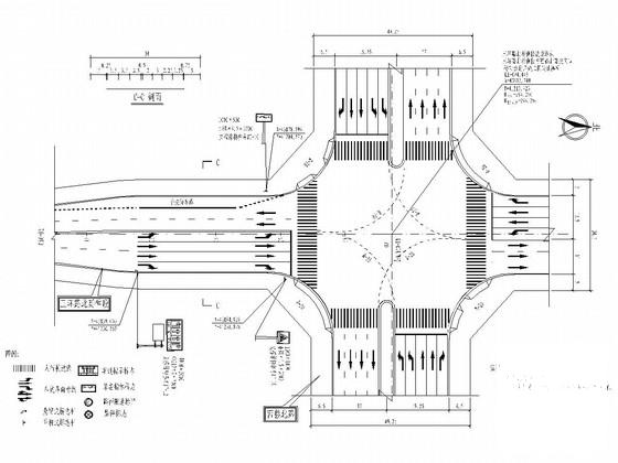
双向四车道城市次干路交通工程设计大样图
- 发布时间:2021-12-19
- 评论次数:0
- 浏览次数:0
- 文件大小:0.78 MB
- 收藏次数:0
- 
								文件名称: 附件-995799859756769887.rar 附件-995799859756769887.rar
								双向四车道设计大样图下载
							
						- 双向四车道隧道通风设计CAD图纸
- 双向四车道城市支路三册全套施工大样图(dwg)
- 双向四车道交通工程标志标线改造施工大样图cad
- 双向四车道市政道路照明设计大样图平面图
- 双向四车道市政道路CAD施工大样图设计(新旧路面搭接)
- 城市次干路双向四车道道路工程CAD设计施工大样图
- 双向四车道城市次干道排水工程CAD施工大样图设计.dwg
- 双向四车道城市支路全套设计施工大样图33张(道路交通工程).
- 双向四车道城市次干道电气照明工程施工图设计
- 双向四车道城市次干路绿化工程设计图纸
- 市政双向四车道路灯工程设计全套图纸
- 双向四车道照明工程设计CAD施工方案图纸
- 双向四车道次干路交通工程设计套CAD图纸(12张)
- 双向四车道高速公路悬索特大桥设计图纸(完整)
- 双向四车道高速公路毕业设计方案(附CAD图纸)
- 双向四车道高速公路路基路面排水设计图纸.dwg
- 双向四车道工程交通工程设计施工图纸(35页).
- 双向四车道高速公路施工图纸总体设计.
- 双向四车道高速公路道路路基防护设计cad图纸_dwg
- 双向四车道高速公路工程交通安全设施施工CAD大样图.dwg
全部评论
						
							评论网友评论仅友表达个人看法,并不表明本站同意其观点,不得发布违反法律法规的内容!
						
						
 
	              	 
	              	 
	              	