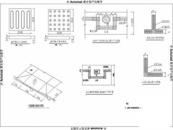
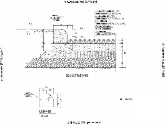
双向四车道市政道路CAD施工大样图设计(新旧路面搭接)
- 发布时间:2023-12-28
- 评论次数:0
- 浏览次数:0
- 文件大小:1.03 MB
- 收藏次数:0
-
文件名称:
附件-995798859795095755.rar
相关下载
- 新旧路面搭接处理CAD施工图纸
- 双向四车道高速公路路基路面排水设计图纸.dwg
- 双向四车道市政道路CAD施工图纸76张
- 双向四车道市政道路照明设计大样图平面图
- 双向四车道市政道路横断面图纸CAD图纸
- 双向四车道隧道通风设计CAD图纸
- 双向八车道市政道路工程路基路面CAD施工方案图纸(中央分隔带)
- 道路加铺沥青混凝土结构路面病害处治及搭接设计CAD图纸
- 双向四车道城市次干路交通工程设计大样图
- 双向四车道市政道路排水工程设计CAD图纸(15张)
- 双向四车道30m宽市政道路热力蒸汽管道设计cad图纸
- 双向四车道市政道路照明设计cad图纸,中华灯和挑臂路灯
- 双向四车道城市支路三册全套施工大样图(dwg)
- 双向四车道交通工程标志标线改造施工大样图cad
- 双向四车道市政道路工程施工大样图平面图及配筋图
- 新城双向四车道市政道路施工方案大样图平面图,结构图
- 双向四车道市政道路CAD施工大样图全套104张(交通排水照明监控).dwg
- 双向四车道城市次干道电气照明工程施工图设计
- 双向四车道照明工程设计CAD施工方案图纸
- 双向四车道工程交通工程设计施工图纸(35页).
全部评论
评论网友评论仅友表达个人看法,并不表明本站同意其观点,不得发布违反法律法规的内容!
