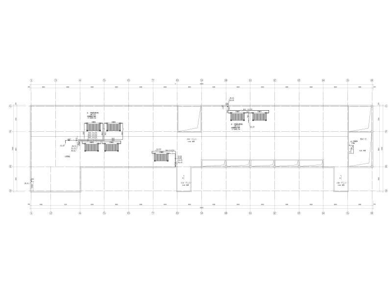
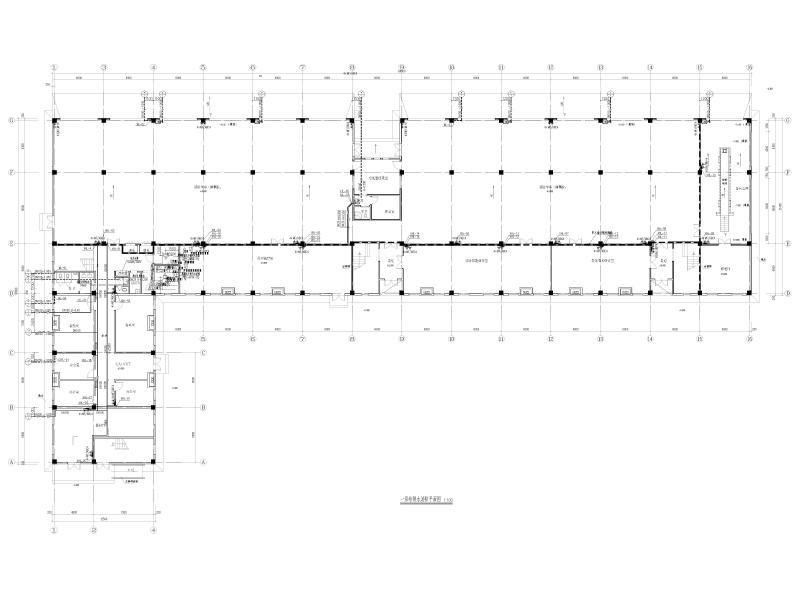
2层机场消防救援工消防站给排水施工图纸cad平面图
- 发布时间:2024-01-02
- 评论次数:0
- 浏览次数:0
- 文件大小:6.2 MB
- 收藏次数:0
- 
								文件名称: 附件-996867668905878587.zip 附件-996867668905878587.zip
								相关下载
							
						- 机场消防救援工消防站暖通施工图纸cad平面图
- 机场消防救援工消防站-结构全套图纸cad平面布置图
- 化工厂消防站给排水CAD图纸及消防站配套器材表
- 消防站门卫、消防站、训练塔建筑施工CAD图纸、效果图纸
- 3层消防站传达室给排水消防CAD施工图纸
- 机场应急救援站及现场指挥中心暖通施工图纸cad平面图
- 德国维特拉消防站(厂房)
- 4层消防救援站给排水平面图及大样图,系统图
- 机场应急救援站及现场指挥中心给排水施工大样图cad平面图
- 大型企业消防站建筑施工CAD图纸
- 多层消防站全套电气CAD施工图纸
- 5层消防站建筑施工CAD图纸
- 消防救援窗节点示意图纸2019
- 消防抢险救援指挥中心电气CAD图纸
- 消防站电气CAD图纸(TN-S)
- 消防站设施布置CAD图纸(电气)
- 消防站全套电气图纸(照明设计)
- 消防救援站(一级站)建筑
- 消防特勤站及消防抢险救援指挥中心建筑施工CAD图纸
- 6层消防站及消防抢险指挥中心暖通CAD施工图纸
全部评论
						
							评论网友评论仅友表达个人看法,并不表明本站同意其观点,不得发布违反法律法规的内容!
						
						
 
	              	 
	              	 
	              	 
	              	