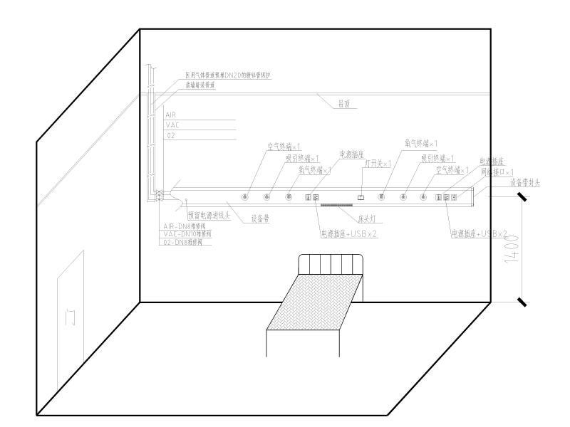
医院门诊首层室内改造项目医用气体工程cad平面图及系统图
- 发布时间:2024-01-02
- 评论次数:0
- 浏览次数:0
- 文件大小:4.56 MB
- 收藏次数:0
- 
								文件名称: 附件-996876769569779058.dwg 附件-996876769569779058.dwg
								相关下载
							
						- 医院门诊首层改造项目给排水施工大样图cad平面图及系统图
- 医院门诊大楼医用气体工程设计CAD施工大样图
- 医院门诊首层升级改造电气施工图纸cad平面图
- 25层门诊住院大楼改造工程首层结构施工图纸cad平面图
- 10942平米10层医院门诊大楼医用气体工程设计施工大样图
- 医院门诊住院综合楼空调通风排烟系统设计施工CAD图纸(医用气体系统)
- 医院门诊楼首层暖通施工图纸cad平面图
- 精品酒店项目消防改造工程平面图及消火栓系统原理图
- 医院建设项目门诊楼给排水施工图纸平面图及系统图
- 医院传染楼医用气体施工图纸布置图
- 7层省人民医院餐厅改造加建项目-电气cad平面图及系统图
- 医院分院门诊楼暖通施工图纸平面图及系统图
- 5层医院门诊楼电气施工图纸平面图及系统图
- 酒店消防改造设计项目平面图及系统图,施工图
- 城中村改造项目给排水施工图纸平面图及系统图
- 国内医院弱电系统CAD图纸(改造项目)
- 32层农村改造项目暖通施工大样图平面图及系统图
- 医院泛光本工程电气施工图纸cad平面图及系统图
- 3层大学食堂改造维修项目-电施施工图纸cad平面图及系统图
- 棚户区改造项目暖通施工图纸负荷平面图及通风图
全部评论
						
							评论网友评论仅友表达个人看法,并不表明本站同意其观点,不得发布违反法律法规的内容!
						
						
 
	              	 
	              	