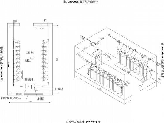
10942平米10层医院门诊大楼医用气体工程设计施工大样图
- 发布时间:2021-11-23
- 评论次数:0
- 浏览次数:0
- 文件大小:1.76 MB
- 收藏次数:0
-
文件名称:
附件-995858565759587589899.rar
医用气体工程设计下载
- 医院门诊大楼医用气体工程设计CAD施工大样图
- 医院门诊住院综合楼空调通风排烟系统设计施工CAD图纸(医用气体系统)
- 医院门诊首层室内改造项目医用气体工程cad平面图及系统图
- 医院传染楼医用气体施工图纸布置图
- 医院门诊楼空调工程设计CAD图纸
- 13层中医院门诊大楼给排水CAD施工大样图
- 3层县级市医院独立门诊楼建筑工程设计CAD施工大样图
- 20米现代风格市级医院门诊大楼建筑设计施工CAD大样图
- 大型医院门诊医技大楼空调设计施工图纸
- 12层医院门诊大楼空调通风施工图纸
- 8层医院住院门诊综合大楼空调系统设计施工图纸
- 20米现代风格市级医院门诊大楼建筑设计CAD施工图纸
- 医院病房楼与门诊大楼电气设计CAD施工图纸(火灾自动报警)
- 市中心医院门诊大楼电气CAD施工图纸(甲级设计院)
- 医院门诊大楼污水处理竣工大样图(设计说明).dwg
- 门诊、医院综合楼室外装饰工程设计说明(word,20页).doc
- 医院门诊住院综合楼及附建给排水消防CAD施工图纸(气体灭火)
- 大型45000平米5层医院门诊医技大楼空调设计图纸
- 4层医院门诊大楼建筑方案设计CAD图纸
- 医院门诊大楼污水处理竣工CAD图纸
全部评论
评论网友评论仅友表达个人看法,并不表明本站同意其观点,不得发布违反法律法规的内容!
