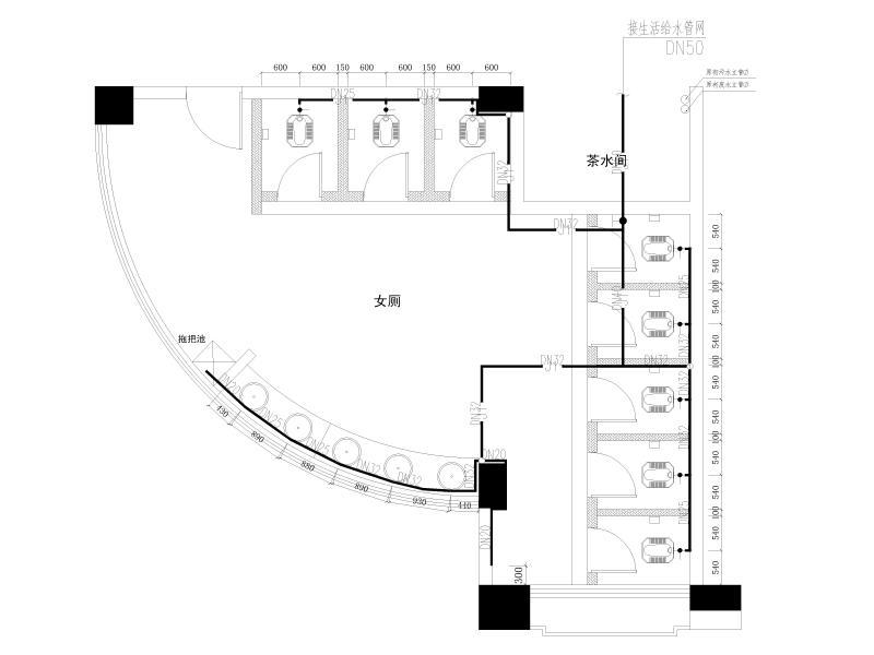
中学校园升级改造工程给排水施工大样图cad平面图及系统图
- 发布时间:2024-01-02
- 评论次数:0
- 浏览次数:0
- 文件大小:18.23 MB
- 收藏次数:0
- 
								文件名称: 附件-996876769978099858.zip 附件-996876769978099858.zip
								相关下载
							
						- 中学校园升级改造工程设计-电气图纸cad平面图及系统图
- 中学校园升级改造工程暖通施工图纸cad平面图
- 5层升级改造给排水施工图纸平面图及消防栓系统原理图
- 棚户区改造工程给排水施工图纸大样图及平面图,系统图
- 中学升级改造建筑平面图及立面图
- 绿化升级改造工程给排水施工图cad平面布置图
- 文化长廊及永久舞台升级改造项目施工大样图cad
- 卫生院改造给排水施工图大样图及平面图,系统图
- 医院门诊首层改造项目给排水施工大样图cad平面图及系统图
- 6层改造升级框架结构电梯井施工图纸cad平面图及剖面图
- 城中村改造项目给排水施工图纸平面图及系统图
- 大桥连接线升级改造工程路线交叉施工大样图cad布置图
- 医院门诊首层升级改造电气施工图纸cad平面图
- 精品酒店项目消防改造工程平面图及消火栓系统原理图
- 公租房工程给排水施工大样图平面图及系统原理图
- 公租房工程给排水施工大样图平面图及系统展开图
- 6#场馆给排水施工大样图平面图及系统图
- 4#场馆给排水施工大样图平面图及系统图
- 中学校园实验室及卫生间改造给排水施工图纸cad平面图
- 绿化升级改造工程结构施工图纸cad平面布置图
全部评论
						
							评论网友评论仅友表达个人看法,并不表明本站同意其观点,不得发布违反法律法规的内容!
						
						
 
	              	 
	              	 
	              	 
	              	